Appartamento in vendita - Seetalstrasse 40, 5630 Muri AG
Perché amerai questa proprietà
Layout spazioso per famiglie
Finiture moderne di alta qualità
Vicino alla natura e ai servizi
Organizza una visita
Prenota una visita con Räber oggi!
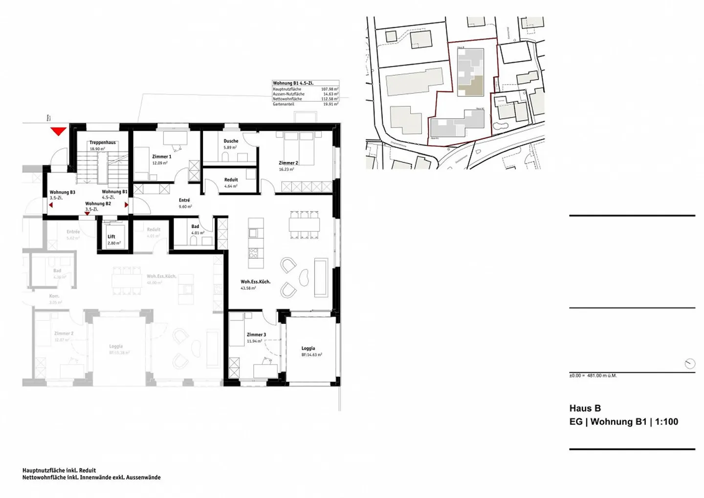
Appartamento al piano terra - Progetto di nuova costruzione "Lindenberg"
Progetto di nuova costruzione - "Lindenberg", Seetalstrasse, Muri AG
L'inizio della costruzione è avvenuto!
Il progetto combina un'abitazione moderna con un alto standard di vita e offre così un'opzione attraente per i futuri residenti.
Offerta di appartamenti
3 x appartamenti di 3,5 stanze
Appartamento B2: VENDUTO
Appartamento B3: VENDUTO
Appartamento B5: VENDUTO
5 x appartamenti di 4,5 stanze
Appartamento B1: CHF 960'000.-
Appartamento B4: CHF 950'000.-
Appartamento B6: VENDUTO
App...
Dettagli immobile
- Disponibile dal
- 31.10.2026
- Stanze
- 4.5
- Anno di costruzione
- 2026
- Superficie abitabile
- 108 m²



