Duplex in vendita - Rue Du Nord 4, 1907 Saxon
Perché amerai questa proprietà
Costruzione moderna MINERGIE
Porte in vetro LUMICENE
Balcone con vista mozzafiato
Organizza una visita
Prenota una visita oggi!
Duplex 2.5 stanze
Appartamento duplex 2.5 stanze
Appartamento duplex 2.5 stanze
Saxon è un piacevole comune situato tra Sion e Martigny. L'immobile oggetto di questa vendita si trova in un ambiente tranquillo vicino alla stazione ferroviaria di Saxon.
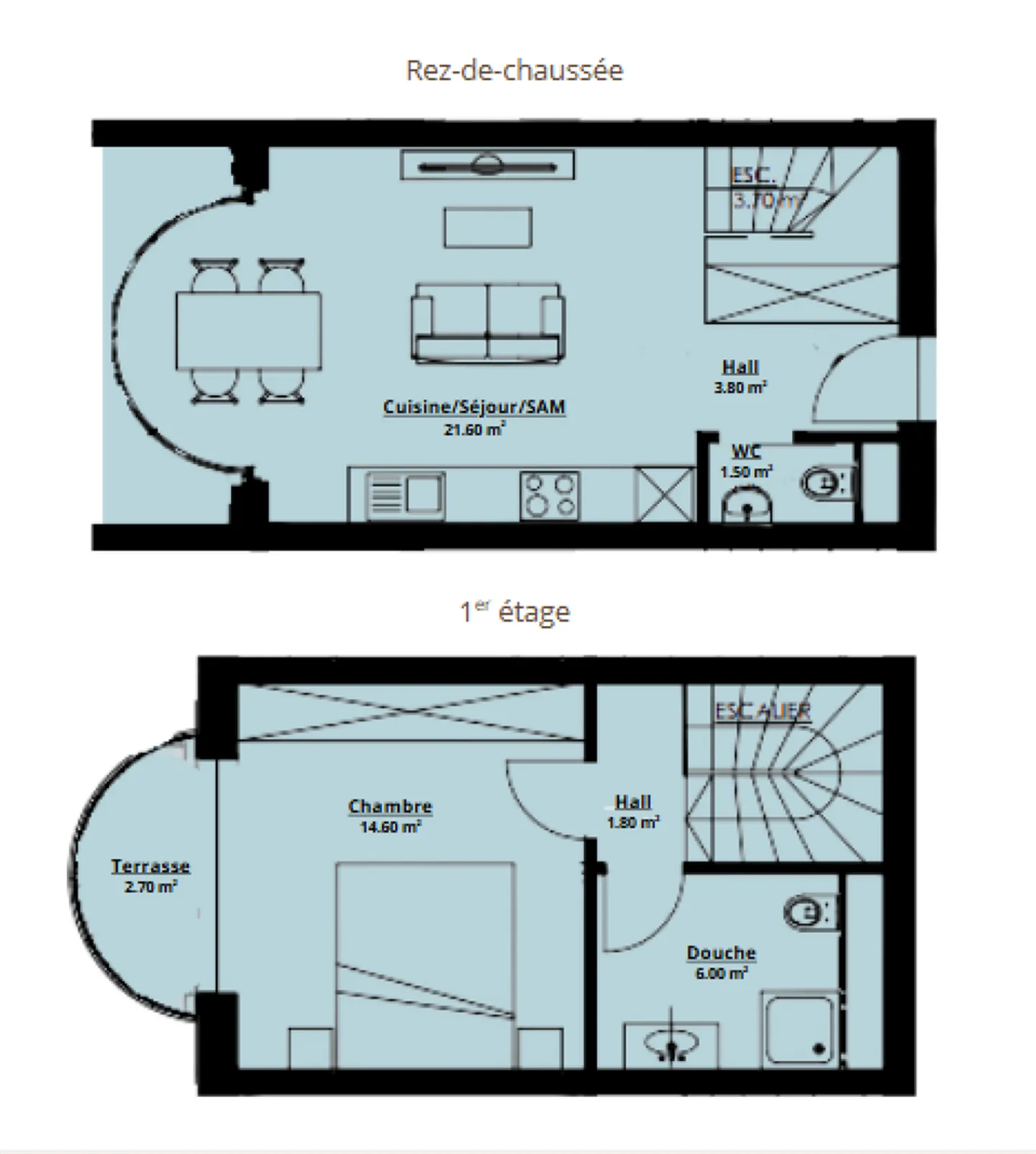
Appartamento duplex, si estende su due livelli (piano terra-primo piano).
Al piano terra, un ingresso e un WC per gli ospiti, poi si apre su uno spazio aperto che riunisce cucina, soggiorno e sala da pranzo, tutto con accesso alla terrazza con finestre LUMICENE per s...
Dettagli immobile
- Disponibile dal
- Su accordo
- Stanze
- 2.5
- Superficie abitabile
- 74 m²



