1 / 10

Appartamento in affitto - In Der Haselmatte 4, 4153 Reinach BL

2.5 rooms • 63 m² • 2° piano
CHF 670’000.-
CHF 10’635 m²

Perché amerai questa proprietà

Ampia terrazza soleggiata

Cucina aperta elegante

Design del bagno lussuoso

Organizza una visita

Prenota una visita con Monique oggi!

Monique Marfurt
trimag Treuhand-Immobilien AG
Questa descrizione è stata tradotta automaticamente da Tedesco.

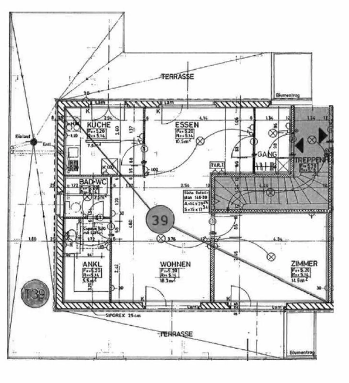
Moderno appartamento attico di 2,5 stanze

Questo appartamento attico di 2,5 stanze ben curato si trova in una posizione centrale e tranquilla a Reinach e colpisce per la sua pianta ben studiata, l'arredamento interno di alta qualità e una spaziosa terrazza con sole tutto il giorno.

Il luminoso soggiorno e sala da pranzo con pavimento elegante e ampia vetrata crea una sensazione di spazio arioso. La cucina moderna con piano di lavoro scuro e un elegante area bar si integra armoniosamente nel concetto di spazio aperto, ideale per momenti c...

Dettagli immobile

Disponibile dal
Su accordo
Stanze
2.5
Anno di costruzione
1974
Anno di ristrutturazione
2022
Superficie abitabile
63
Piano

Agenzia

trimag Treuhand-Immobilien AG
Indirizzo:Allschwilerstrasse 17, 4009, Basel
Ref: dca3bdca-581c-11f0-9d93-069ae14c7a06

Località

In Der Haselmatte 4, 4153 Reinach BL

Fonti