Appartamento in vendita - Goristrasse 3a, 7260 Davos Dorf
Perché amerai questa proprietà
Posizione centrale tranquilla
Ristrutturato a risparmio energetico
Ampia area giardino
Organizza una visita
Prenota una visita con Andreas oggi!
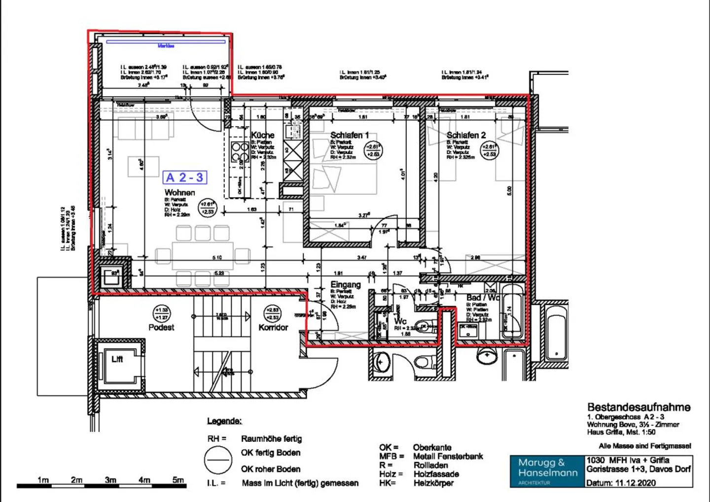
Moderno appartamento di 3 1/2 locali in prossimità immediata della seggiovia e delle piste da sci di fondo di Bünda
StWEG Iva + Grifla
La proprietà si trova nel tranquillo ma centrale quartiere di Bünda, in prossimità immediata della seggiovia e delle piste da sci di fondo.
Puoi raggiungere il lago di Davos come area ricreativa con varie attività ricreative, la stazione ferroviaria di Davos Dorf e i negozi in pochi minuti a piedi.
Grazie alla posizione ideale e alle fermate dei mezzi pubblici, puoi evitare i ingorghi durante l'alta stagione.
In un nuovo splendore
Le involucri degli edifici delle due case Iva + Gri...
Dettagli immobile
- Disponibile dal
- 11.11.2019
- Stanze
- 3.5
- Anno di costruzione
- 1976
- Anno di ristrutturazione
- 2024
- Superficie abitabile
- 80 m²
- Superficie utilizzabile
- 80 m²
- Piano
- 1°
- Piani dell'edificio
- 4



