1 / 11

Appartamento in affitto - 3963 Crans-Montana

4.5 rooms • 205 m²
CHF 2’227’800.-
CHF 10’867 m²

Perché amerai questa proprietà

Terrazza soleggiata con giardino

Cucina aperta con isola

Camino nel soggiorno

Organizza una visita

Prenota una visita con John oggi!

John Taylor Crans-Montana
Berra Immobilier SA
Questa descrizione è stata tradotta automaticamente da Francese.

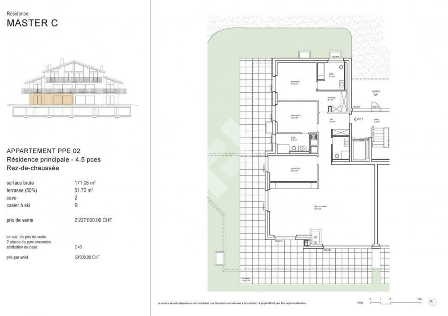
Appartamento 4.5 stanze

Residenza MASTER C - Ultimo appartamento di 4,5P al piano giardino

CONSEGNA FINE 2025:

Stai cercando un appartamento di alta qualità come residenza principale, tranquillo e vicino al centro di Crans-Montana?

John Taylor Crans-Montana sarà lieto di presentarti questo magnifico progetto in stile chalet.

La residenza "Master C" offre una posizione privilegiata vicino alla stazione di Crans-Montana e gode di tranquillità e di un'ottima esposizione al sole grazie alla sua orientazione.

La residenza ...

Dettagli immobile

Disponibile dal
Su accordo
Stanze
4.5
Bagni
3
Superficie abitabile
205

Caratteristiche

Ascensore
Camino
Nuova costruzione
Fornitura di fognature

Agenzia

Berra Immobilier SA

Località

3963 Crans-Montana

Fonti