Appartamento in vendita - 3960 Sierre
Perché amerai questa proprietà
Ampia terrazza sud-ovest
Zona residenziale tranquilla
Accesso diretto con ascensore
Organizza una visita
Prenota una visita oggi!
«SIERRE Ampio appartamento di prestigio Edificio con 2 unità»
SIERRE
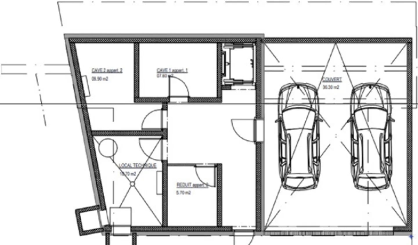
EDIFICIO CON DUE UNITA' ABITATIVE
Ampio appartamento familiare situato sulla collina
Situato sulle alture di Sierre, a 5 minuti in auto dall'avenue principale della città del sole, questo appartamento in costruzione è ideale per una famiglia che cerca la vicinanza
ai servizi, alle scuole e ai mezzi pubblici. Gli spazi sono ampi e piacevolmente distribuiti. Le finiture sono a discrezione dell'acquirente.
Situato su un pendio in un quartiere di ville e edifici residenziali, beneficia di un ...
Dettagli immobile
- Disponibile dal
- Su accordo
- Stanze
- 4.5
- Anno di costruzione
- 2024
- Piano
- 1°



