Appartamento in vendita - 3920 Zermatt
Perché amerai questa proprietà
Vista mozzafiato sul Cervino
Soggiorno accogliente con camino
Espandibile fino a 330 m²
Organizza una visita
Prenota una visita oggi!
Vivere centralmente a zermatt
In un edificio residenziale "Zur Matte A", proprio nel cuore di Zermatt, ti aspetta questo bellissimo appartamento mansardato. L'appartamento è ideale per realizzare il tuo sogno di avere un appartamento a Zermatt.
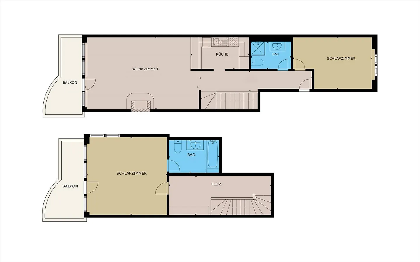
Questo appartamento mansardato duplex di 3,5 locali a Zermatt offre un perfetto mix di charme alpino tradizionale e comfort moderno. L'appartamento mansardato si estende su due piani e dispone di due camere da letto e due bagni.
Il cuore della casa è il soggiorno con un accogliente ca...
Dettagli immobile
- Disponibile dal
- Su accordo
- Stanze
- 3.5
- Anno di costruzione
- 1989
- Superficie abitabile
- 127 m²
- Superficie utilizzabile
- 127 m²
- Piano
- 2°



