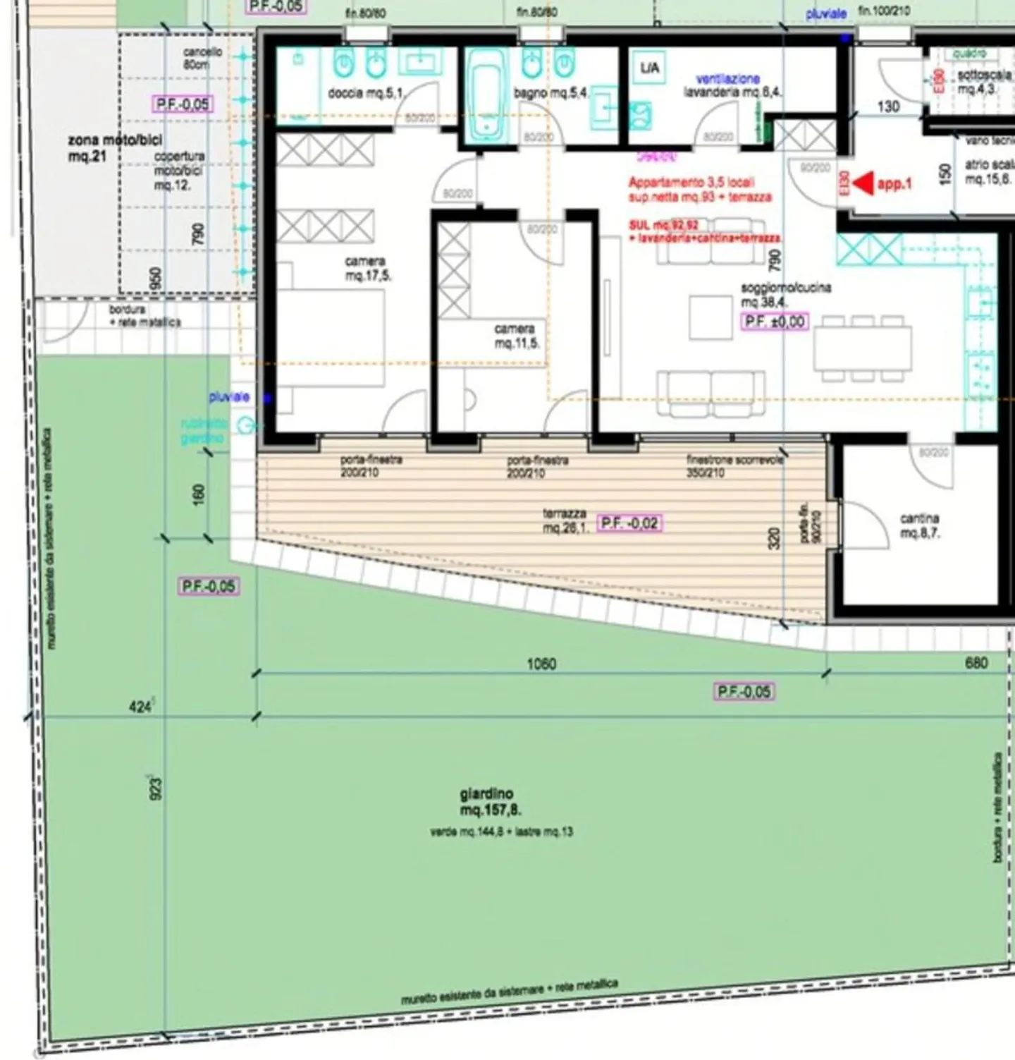
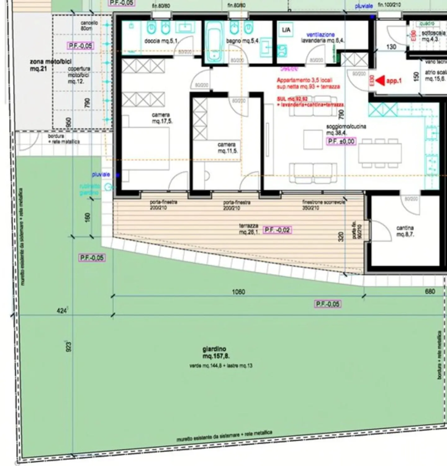
Appartamento in vendita - Via Cantonale 39, 6532 Castione
Perché amerai questa proprietà
Giardini privati disponibili
Orientamento sud/ovest
Sistema di riscaldamento solare
Organizza una visita
Prenota una visita con oggi!
NUOVO EDIFICIO a CASTIONE
In prossimità di tutti i servizi, raggiungibile entro 500 metri.
Centri commerciali
Stazione ferroviaria
Collegamento autostradale A2 A13
Centro postale
Posizione tranquilla, orientamento Sud/Ovest, costruzione solida e tradizionale, riscaldamento pompa aria-acqua + pannelli solari per la preparazione dell'acqua calda
In OGNI appartamento:
Lavanderia E possibilità di installare l'aria condizionata sul tetto
NON ASPETTARE! Chiama ora, le opportunità sono limitate.
Solo 6 appartame...
Dettagli immobile
- Disponibile dal
- Su accordo
- Stanze
- 3
- Bagni
- 2
- Servizi igienici
- 2
- Parcheggi interni
- 2
- Anno di costruzione
- 2023
- Superficie abitabile
- 106 m²



