Appartamento in vendita - Bergstrasse 37, 6410 Goldau
Perché amerai questa proprietà
Ampia area balcone
Esposizione sud-est
Nuovo progetto edilizio
Organizza una visita
Prenota una visita con Birrer oggi!
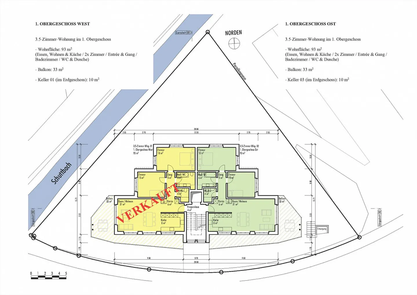
Appartamento 3.5 stanze
Questo appartamento nuovo di 3.5 stanze si trova al 1° piano in posizione sud-est e offre una pianta ben progettata con un ampio balcone. L'appartamento fa parte di un progetto di nuova costruzione con inizio lavori previsto nel 2026 e occupazione prevista nell'inverno 2027. Sono disponibili posti auto coperti e scoperti, che possono essere acquistati separatamente.
Tutte le informazioni necessarie come posizione, suddivisione degli spazi, descrizione della costruzione, ecc. possono essere trovat...
Dettagli immobile
- Disponibile dal
- Su accordo
- Stanze
- 3.5
- Anno di costruzione
- 2027
- Superficie abitabile
- 93 m²
- Piano
- 1°
- Piani dell'edificio
- 3



