Attico in vendita - Via Patrizia 32, 6612 Ascona
Perché amerai questa proprietà
Vista lago mozzafiato
Piscina privata
Vicino al campo da golf
Organizza una visita
Prenota una visita oggi!
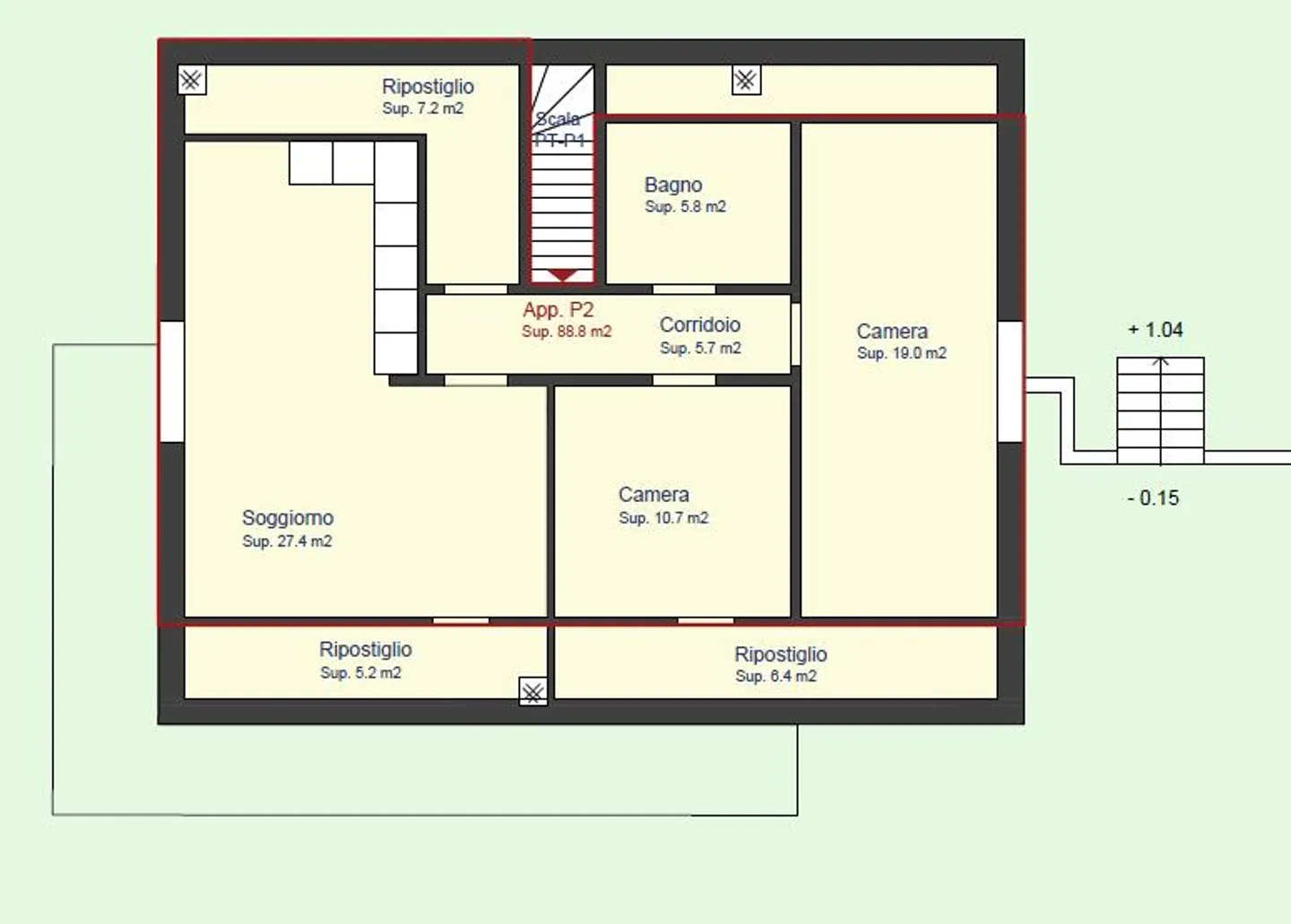
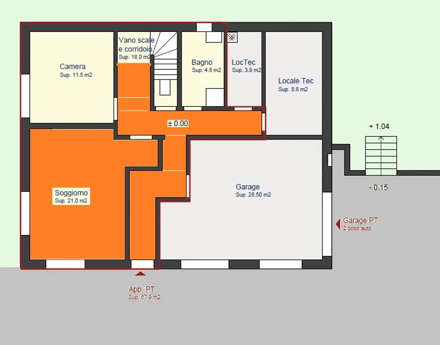
Appartamento attico di 5,5 stanze
Attico con piscina con la possibilità di acquisirlo come seconda residenza, a due minuti a piedi dal lago e dal campo da golf. Si compone di: 4 camere da letto, ingresso, bagno per gli ospiti, bagno con vasca, bagno con doccia, ripostiglio, cucina, soggiorno, balcone, terrazza e cantina. 2 posti auto in garage. Attico molto luminoso. Nelle vicinanze ci sono posti auto nella zona blu. In totale, ci sono 137,5 m2 di superficie abitabile, 16,8 m2 di terrazza, 1 m2 di piccolo balcone, 15 m2 di canti...
Dettagli immobile
- Disponibile dal
- Su accordo
- Stanze
- 5.5



