Appartamento in vendita - Rütistrasse 30, 6032 Emmen
Perché amerai questa proprietà
Vista mozzafiato sulle montagne
Ampio soggiorno open space
Garage privato incluso
Organizza una visita
Prenota una visita con Krummenacher oggi!
Inizio costruzione ... nuovo - moderno - spazioso
Siamo lieti di presentarvi questo progetto residenziale che combina il comfort abitativo moderno con un ambiente di vita a contatto con la natura.
L'inizio dei lavori è avvenuto nel frattempo e nulla ostacola l'occupazione entro la fine del 2026 / inizio 2027.
Qui godete della combinazione perfetta di una posizione centrale in prossimità immediata dell'area ricreativa locale. Le fermate dell'autobus, i negozi, le scuole e le attività ricreative sono raggiungibili a piedi. La vista libera sulle Alp...
Dettagli immobile
- Disponibile dal
- 01.10.2026
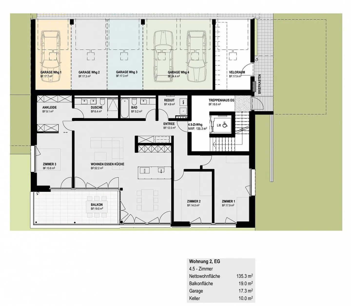
- Stanze
- 4.5
- Anno di costruzione
- 2025
- Superficie abitabile
- 135 m²
- Piano
- Terra



