Attico in vendita - Route De Vaularbel 3, 1468 Cheyres
Perché amerai questa proprietà
Accesso diretto all'appartamento
Ampia terrazza di 30 m2
Opzioni cucina personalizzabili
Organizza una visita
Prenota una visita oggi!
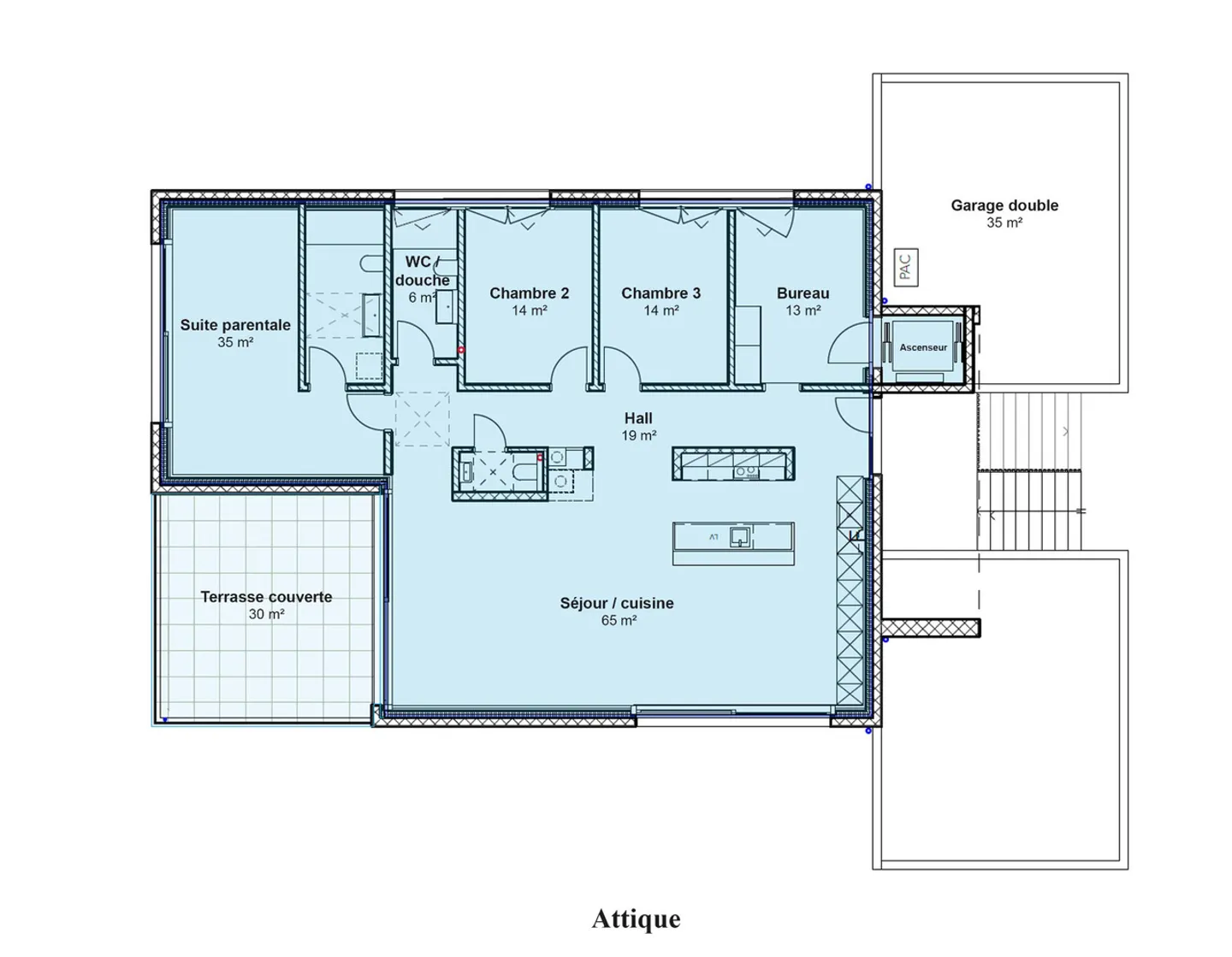
Cheyres, in vendita, bellissimo attico di 190 m2 con vista sul lago!
Cheyres, in vendita, bellissimo attico di 190 m2 con vista sul lago di Neuchâtel e sul Giura!
Questo attico è in fase finale di completamento e la scelta dei materiali e della cucina è lasciata agli acquirenti.
È composto da:
- Un'area d'ingresso con armadi a muro
- una cucina completamente attrezzata (budget consistente, a scelta degli acquirenti) con accesso al soggiorno. Quest'area ha una superficie di 65 m2.
- il soggiorno, molto luminoso e con accesso a una terrazza di 30 m2. Un camino o una s...
Dettagli immobile
- Disponibile dal
- Su accordo
- Stanze
- 5.5
- Anno di costruzione
- 2024
- Superficie abitabile
- 170 m²
- Piano
- Terra



