Appartamento in vendita - Rue De La Roulema 25, 1632 Riaz
Perché amerai questa proprietà
Oasi di giardino privato
Ampio spazio terrazza
Moderne attrezzature da cucina
Organizza una visita
Prenota una visita oggi!
In vendita, appartamento PPE, 1632 Riaz, Ref 1632.03
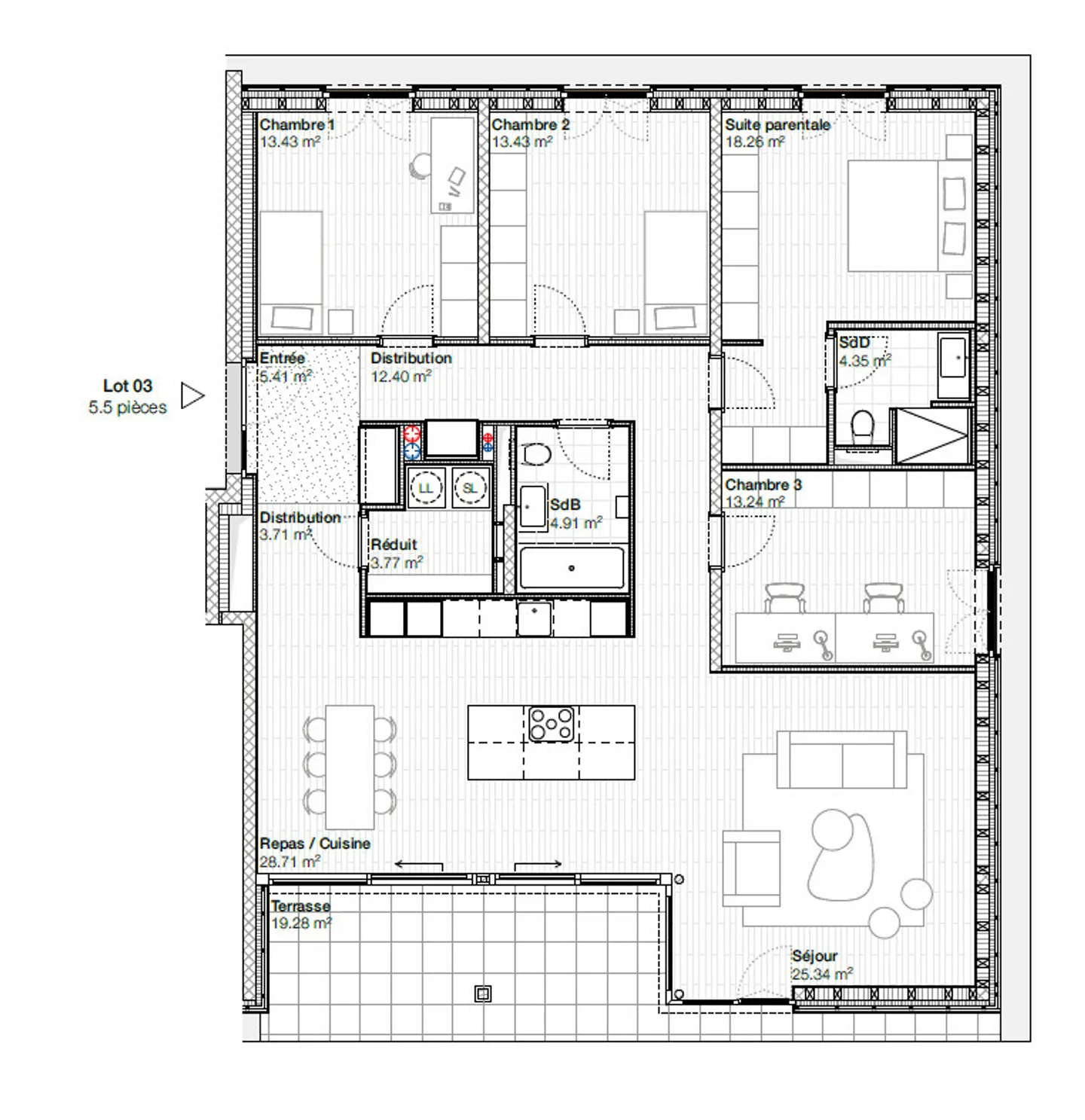
In vendita a Riaz: Magnifico appartamento di 5.5 stanze al piano terra
L'appartamento è composto da:
Ingresso/Corridoio
Bagno (4.91 m2)
Ripostiglio
Cucina/Sala da pranzo (28.71 m2)
Soggiorno (25.34 m2)
3 Camere da letto (13.43 m2 / 13.43 m2 / 13.24 m2)
1 Camera matrimoniale con bagno (18.26 m2 / 4.35 m2)
Terrazza (19.28 m2)
Giardino privato (217.45 m2)
Cantina (8.86 m2)
Un parcheggio sotterraneo completa questo progetto. Il prezzo è di CHF 35'000.- per unità.
Consegna: Dicembre 2027
BUDGETS
Appa...
Dettagli immobile
- Disponibile dal
- Su accordo
- Stanze
- 5.5
- Anno di costruzione
- 2026
- Superficie abitabile
- 150 m²
- Superficie utilizzabile
- 164 m²
- Piano
- Terra




