Appartamento in vendita - Rue De La Roulema 25, 1632 Riaz
Perché amerai questa proprietà
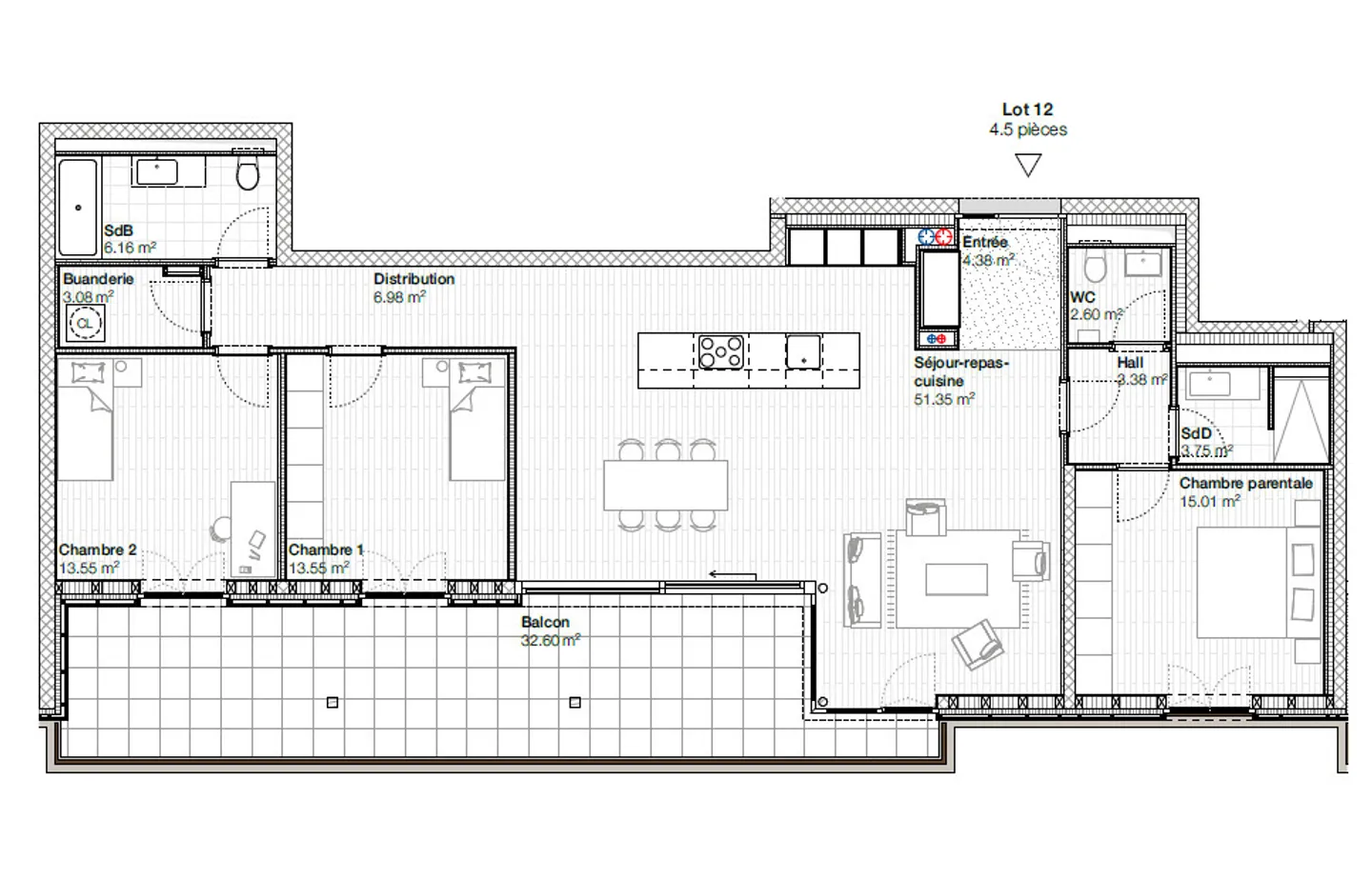
Ampio soggiorno di 51.35 m²
Grande balcone di 32.60 m²
Posto auto sotterraneo disponibile
Organizza una visita
Prenota una visita con Gérance oggi!
Condominio in vendita, rue de la roulema 25, a riaz, svizzera
In vendita a Riaz: Magnifico appartamento di 4.5 locali al 1° piano
L'appartamento è composto come segue:
Ingresso/hall
WC
2 bagni (3.75 m2 / 6.16 m2) Cucina/sala da pranzo/Soggiorno (51.35 m2)
Lavanderia
2 camere (13.55 m2 / 13.55 m2)
1 camera matrimoniale (15.01 m2)
Balcone (32.60 m2)
Cantina (8.92 m2)
Un parcheggio sotterraneo completa questo progetto. Il prezzo è di CHF 35'000.- per unità.
Consegna: circa aprile 2027
BUDGETS
Apparecchi sanitari
Budget: CHF 14'500.00 IVA inclusa
Arredamenti d...
Dettagli immobile
- Disponibile dal
- Su accordo
- Stanze
- 4.5
- Anno di costruzione
- 2025
- Superficie abitabile
- 127 m²
- Superficie utilizzabile
- 147.8 m²
- Piano
- 1°




