Appartamento in vendita - Rue De La Roulema 25, 1632 Riaz
Perché amerai questa proprietà
Ampio giardino privato
Grande terrazza per rilassarsi
Cucina moderna con zona pranzo
Organizza una visita
Prenota una visita oggi!
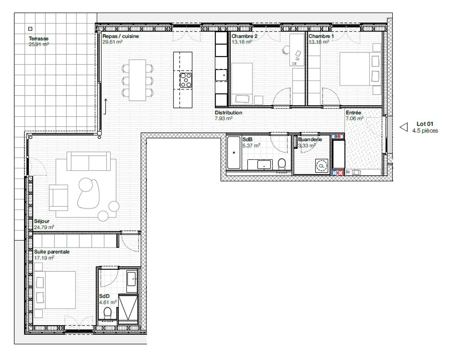
In vendita, Appartamento PPE, 1632 Riaz, Ref 1632.01
In vendita a Riaz: Magnifico appartamento di 4.5 stanze al piano terra
L'appartamento è composto da:
Ingresso/Corridoio
Lavanderia
Bagno (5.37 m2) Cucina/Sala da pranzo (29.61 m2)
Soggiorno (24.79 m2)
2 Camere da letto (13.18 m2 / 13.16 m2)
1 Camera matrimoniale con bagno (17.19 m2 / 4.61 m2)
Terrazza (25.91 m2)
Giardino privato (157.27 m2)
Cantina (7.04 m2)
Un parcheggio sotterraneo completa questo progetto. Il prezzo è di CHF 35'000.- per unità
Consegna: Dicembre 2027
BUDGETS
Apparecchi sanita...
Dettagli immobile
- Disponibile dal
- Su accordo
- Stanze
- 4.5
- Anno di costruzione
- 2026
- Superficie abitabile
- 130 m²
- Superficie utilizzabile
- 146 m²
- Piano
- Terra




