Appartamento in vendita - Oberstrasse 22a, 3550 Langnau im Emmental
Perché amerai questa proprietà
Posizione centrale soleggiata
Finiture di alta qualità
Balconi e terrazze spaziosi
Organizza una visita
Prenota una visita con Yvonne oggi!
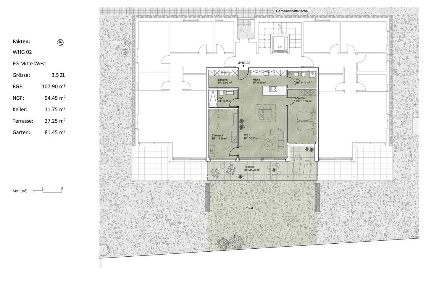
Appartamento moderno di 3,5 locali a Langnau im Emmental
A Langnau i.E. (quasi) senza nebbia, sta sorgendo un edificio plurifamiliare con 11 appartamenti e un garage. La posizione su Oberstrasse è centrale, tranquilla e soleggiata.
Le seguenti caratteristiche contraddistinguono la casa e gli appartamenti:
- Ascensore
- Impianto fotovoltaico sul tetto
- Sistema di riscaldamento con acqua di falda; in estate è possibile un leggero raffreddamento
- Facciata in legno ventilata con isolamento in lana minerale
- Appartamenti al piano terra con giardino e veranda ...
Dettagli immobile
- Disponibile dal
- 01.04.2026
- Stanze
- 3.5
- Anno di costruzione
- 2025
- Superficie abitabile
- 108 m²
- Superficie utilizzabile
- 146 m²
- Piano
- Terra



