Appartamento in vendita - Via Del Tiglio 22, 6592 S. Antonino
Perché amerai questa proprietà
Ampia terrazza coperta
Zona giorno open space
Area residenziale tranquilla
Organizza una visita
Prenota una visita con Quattropareti oggi!
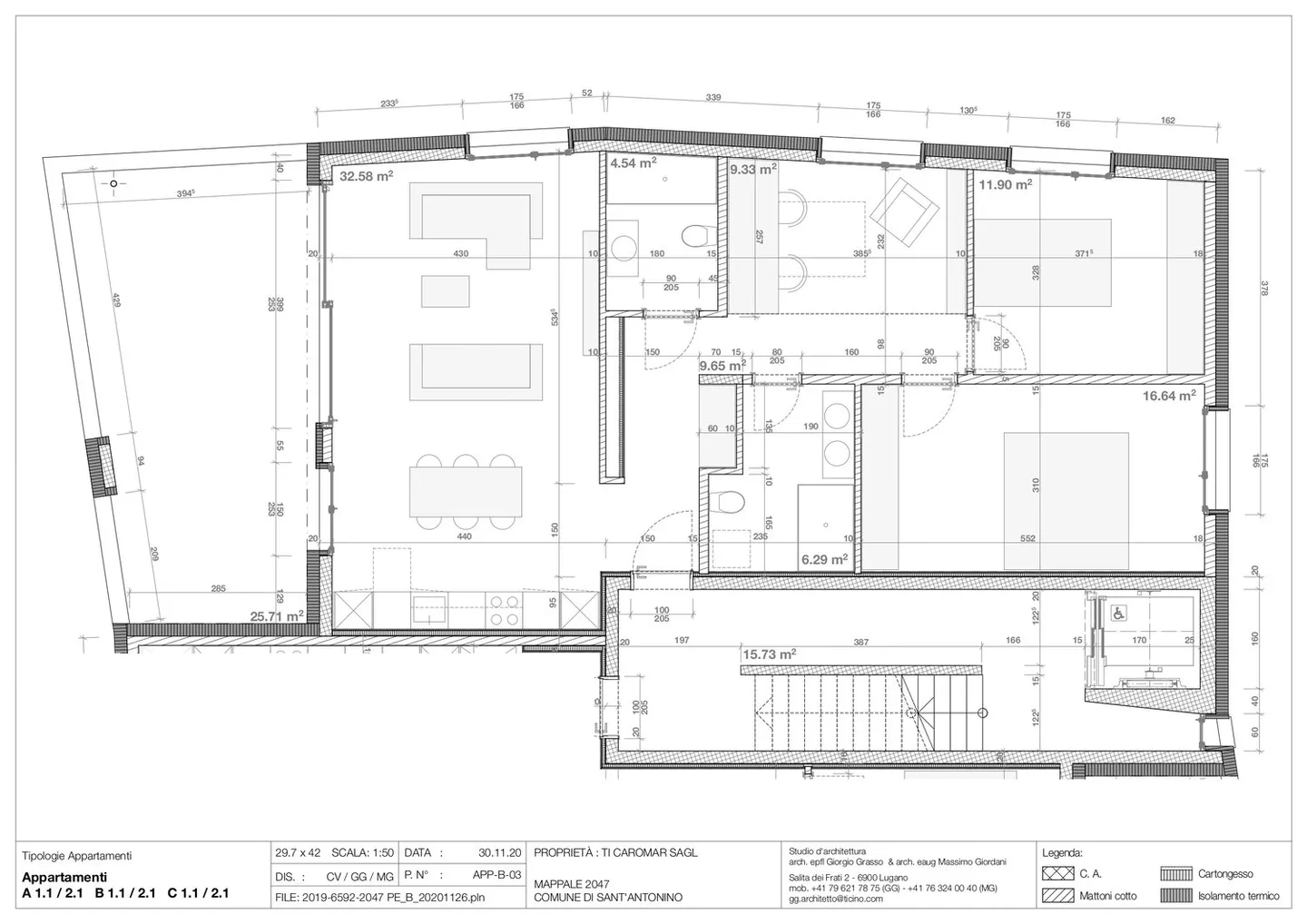
Nuovo appartamento di 4 stanze a S. Antonino
Residenza al Tiglio - nuovo quartiere residenziale nel cuore di Sant'Antonino.
Appartamento di 4 stanze, 109 m² lordi + 28 m² di terrazza coperta, composto da cucina-sala da pranzo-soggiorno in open space, due camere da letto, uno studio aperto, due docce/WC, di cui uno è attrezzato con lavatrice/asciugatrice, terrazza, al 1° piano del blocco A.
La tranquillità della zona è particolarmente apprezzata, offrendo una buona qualità della vita, protetta dalle interferenze del traffico automobilistico, ...
Dettagli immobile
- Disponibile dal
- Su accordo
- Stanze
- 4
- Anno di costruzione
- 2023
- Superficie abitabile
- 123 m²
- Superficie utilizzabile
- 109 m²
- Piano
- 1°




