1 / 10

Appartamento ammobiliato in affitto - Route De Champoussin 22, 1873 Champoussin

2.5 rooms • 46 m² • 1° piano
CHF 260’000.-
CHF 5’652 m²

Perché amerai questa proprietà

Soggiorno luminoso con vista

Balcone privato per relax

Ascensore per accesso comodo

Organizza una visita

Prenota una visita con Serhat oggi!

Serhat Polat
Foti Immobilier
Questa descrizione è stata tradotta automaticamente da Tedesco.

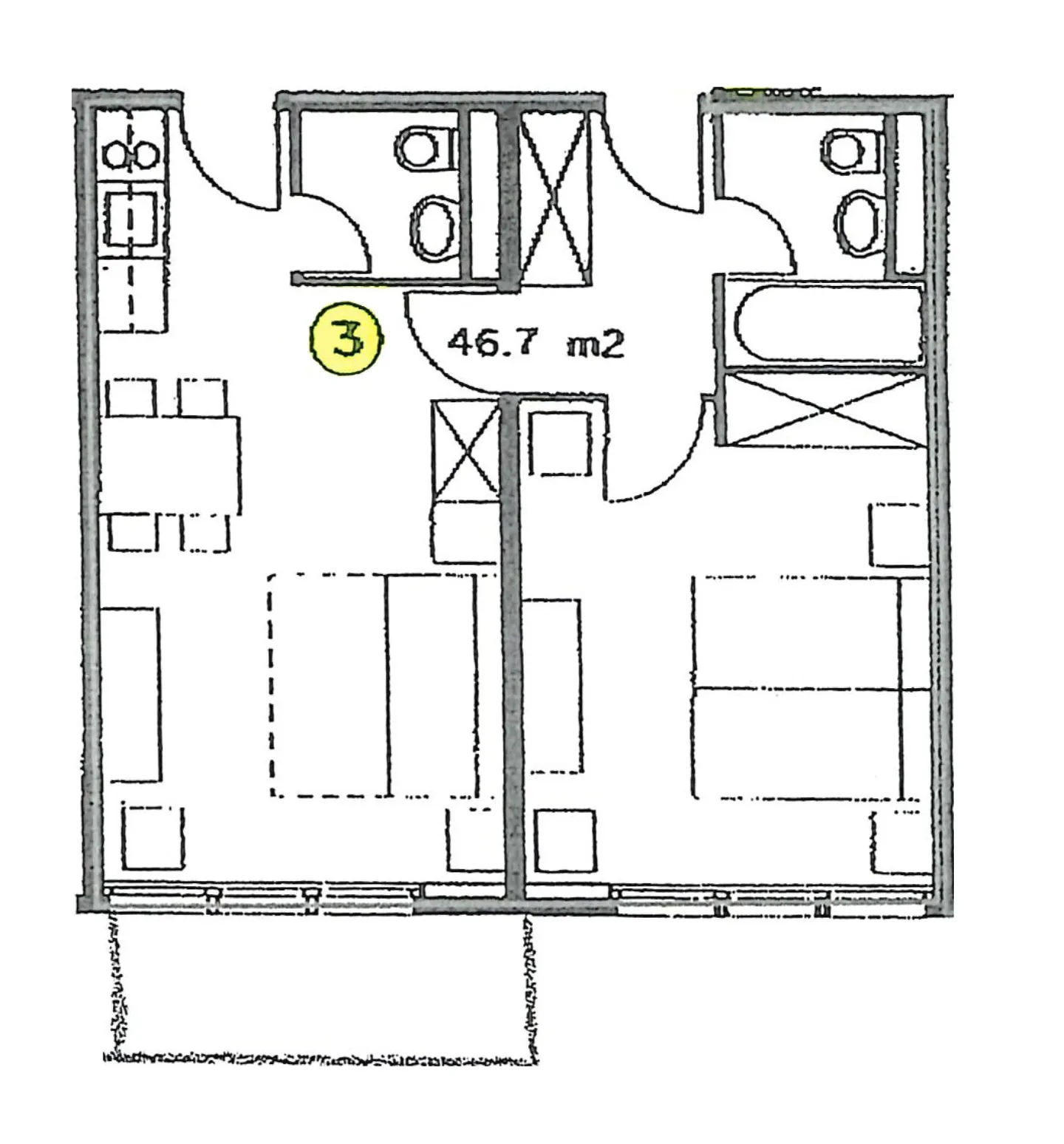
Appartamento con 2,5 stanze e balcone

Appartamento con 2,5 stanze e balcone. Ideale pied-à-terre in montagna, nel cuore del villaggio, a pochi passi dalle piste, sci ai piedi!

Si trova al 1° piano di un edificio residenziale con ascensore, questo appartamento luminoso e perfettamente attrezzato di 46 m² offre comfort e praticità in ogni stagione.

È composto da:

* Un soggiorno accogliente e luminoso

* Una camera da letto confortevole con accesso a un balcone privato

* Due bagni/WC, ideali per il ritorno dallo sci

* Una cucina funzionale

* S...

Dettagli immobile

Disponibile dal
Su accordo
Stanze
2.5
Anno di costruzione
1980
Anno di ristrutturazione
2021
Superficie abitabile
46
Piano
Piani dell'edificio
4

Caratteristiche

Balcone
Parcheggio
Ascensore
Arredato

Agenzia

Foti Immobilier
Foti Immobilier
Indirizzo:Rue de Venise 8, 1870, Monthey
(11 reviews)
Ref: APPEGGCHAVS-3

Località

Route De Champoussin 22, 1873 Champoussin

Fonti