Appartamento in vendita - Fabrikstrasse 21, 3292 Busswil BE
Perché amerai questa proprietà
Cucina aperta spaziosa
Veranda luminosa con vista
Ampia area verde comune
Organizza una visita
Prenota una visita con Chantal oggi!
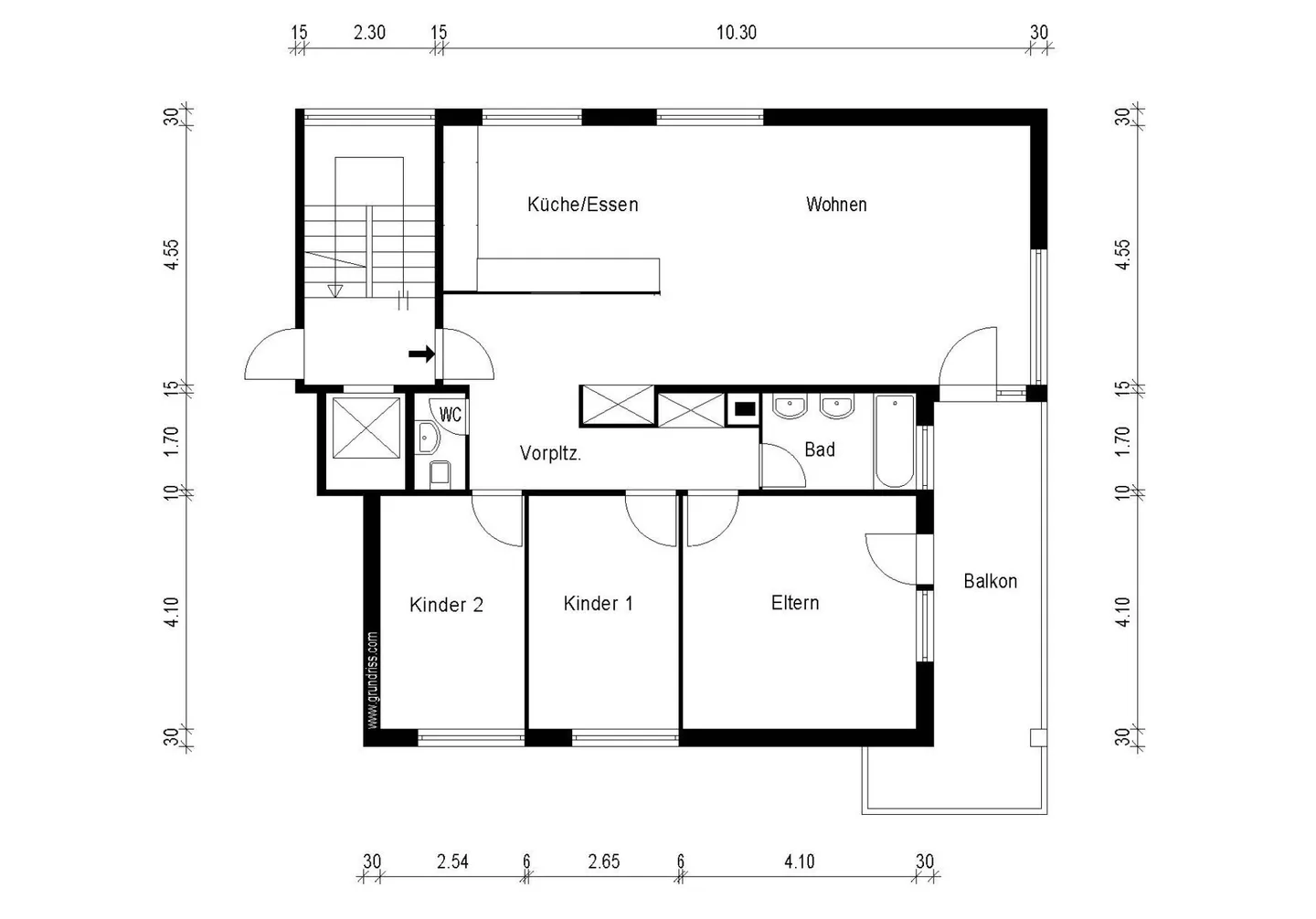
Appartamento attraente di 4,5 stanze incluso box garage
Appartamento con stanze luminose e un'atmosfera abitativa accogliente
I vantaggi a colpo d'occhio:
* Cucina aperta con molto spazio e ripostiglio
* Ampio soggiorno e sala da pranzo
* 3 camere da letto, una delle quali con accesso diretto al balcone
* Luminoso giardino d'inverno con vista sul verde
* Bagno con vasca e WC
* WC separato
* Armadio nell'area d'ingresso
* Lavatrice/asciugatrice al piano terra
* Grande area verde comune con barbecue
* Garage singolo
Il nostro interesse è stato suscitato? Saremmo f...
Dettagli immobile
- Disponibile dal
- Su accordo
- Stanze
- 4.5
- Anno di costruzione
- 1976
- Anno di ristrutturazione
- 2008
- Superficie abitabile
- 100 m²
- Piano
- Terra
- Piani dell'edificio
- 4



