Appartamento in vendita - 2012 Auvernier
Perché amerai questa proprietà
Vista mozzafiato sul lago
Terrazze e balconi spaziosi
Vita elegante vicino ai servizi
Organizza una visita
Prenota una visita oggi!
Residenza azur - fascino senza tempo tra lago e vigneti.
Vivete l'eccezione nel cuore di Auvernier, uno dei villaggi più ricercati ed emblematici della costa di Neuchâtel.
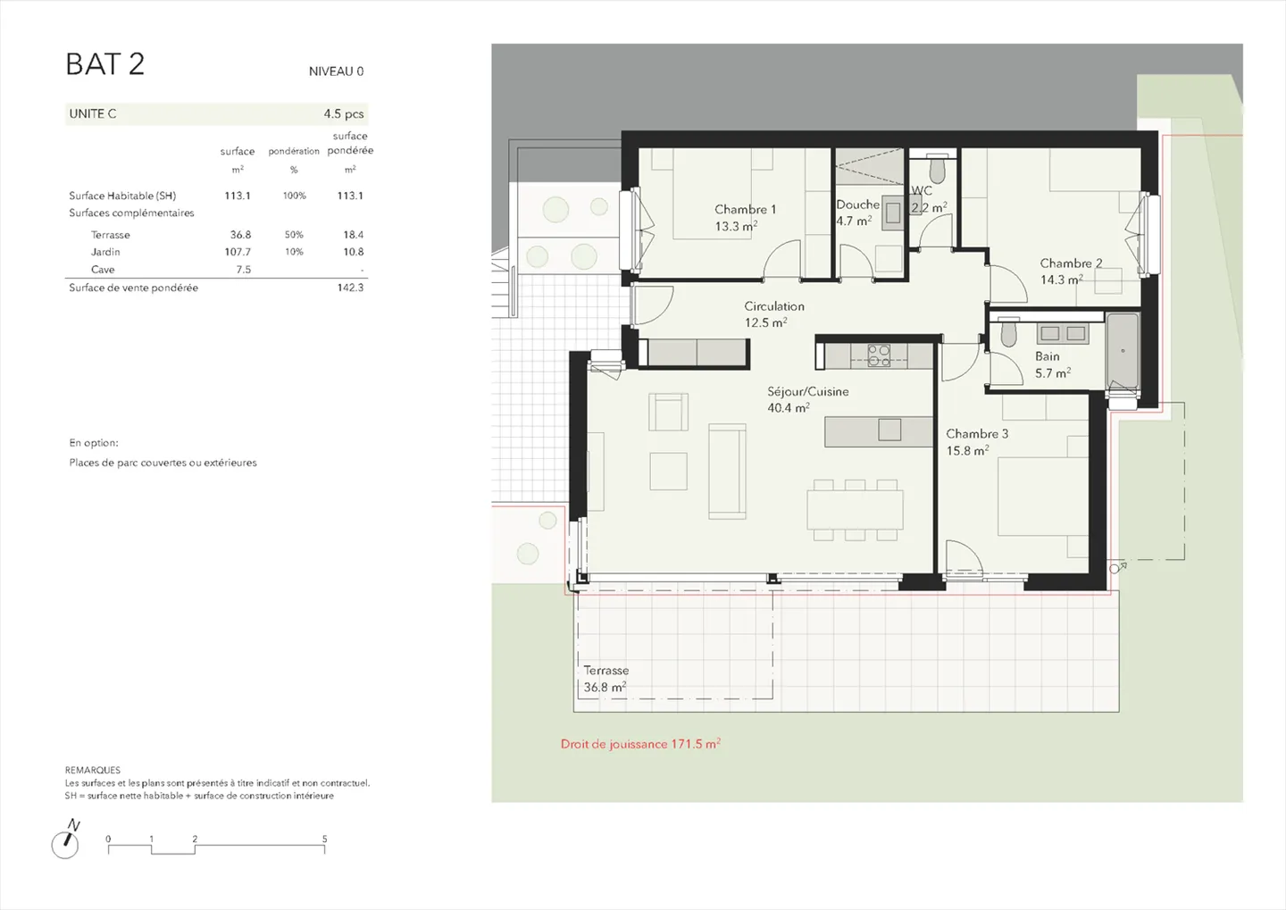
La Residenza AZUR è composta da tre eleganti ville, ognuna delle quali ospita due appartamenti di 4,5 locali con comfort di alta gamma, in un ambiente raro tra lago e vigneti.
Ogni alloggio beneficerà di una bella luminosità e di ampie terrazze o balconi con una vista estesa sul lago, le Alpi e i vigneti.
Godrete di un ambiente di vita elegante ed esclusivo, vicino al porto turistic...
Dettagli immobile
- Disponibile dal
- Su accordo
- Stanze
- 4.5
- Anno di costruzione
- 2025
- Superficie abitabile
- 142 m²
- Superficie utilizzabile
- 142 m²
- Piano
- Terra



