Attico in vendita - Rue Des Vernes 20, 2013 Colombier NE
Perché amerai questa proprietà
Vista mozzafiato sul castello
Terrazza spaziosa di 65 m²
Posizione tranquilla nel villaggio
Organizza una visita
Prenota una visita oggi!
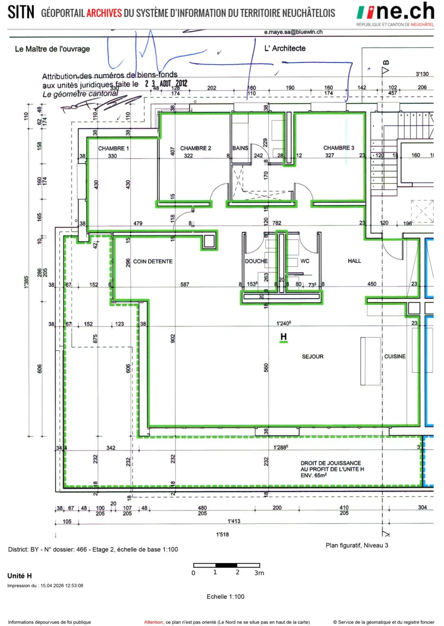
Attico luminoso con grande terrazza e vista libera
Al 3° piano di un piccolo edificio di 8 unità, questo attico luminoso affascina con la sua vista libera sul castello e sul Trou de Bourgogne, nonché per la sua posizione tranquilla, vicino ai servizi del villaggio.
L'appartamento si apre su un ingresso con armadi a muro e offre una cucina aperta generosamente attrezzata con isola centrale, prolungata da un soggiorno inondato di luce grazie a grandi finestre. L'insieme dà accesso a una magnifica terrazza di circa 65 m², ideale per godere delle bel...
Dettagli immobile
- Disponibile dal
- Su accordo
- Stanze
- 5.5
- Anno di costruzione
- 2014
- Superficie abitabile
- 171 m²
- Piano
- 3°


