Appartamento in vendita - Veia Davos-Tga Clo 2, 7460 Savognin
Perché amerai questa proprietà
Design moderno dal 2026
Accesso con ascensore
Balcone panoramico mozzafiato
Organizza una visita
Prenota una visita con Manfred oggi!
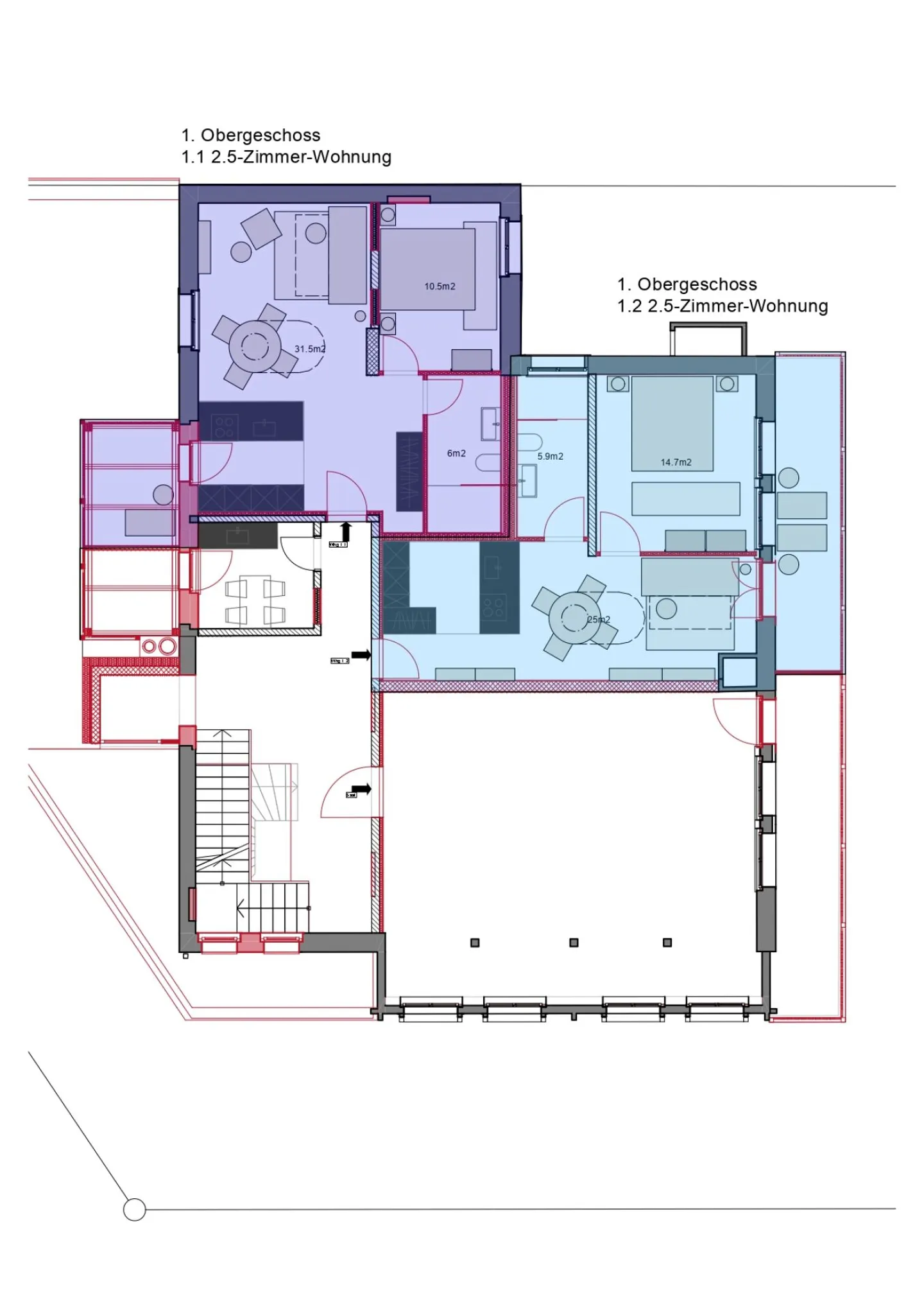
Appartamento 2.5 stanze n. 2.2 con gestione nella tgesa romana
Tgesa Romana - Appartamento per vacanze esclusivo nel cuore di Savognin
La Tgesa Romana, una casa tradizionale a Savognin e parte integrante dell'immagine del villaggio dal 1900, sarà sottoposta a una completa ristrutturazione a partire da aprile 2025 e dovrebbe brillare in un design moderno e contemporaneo a partire da gennaio 2026. Il progetto si trova nel pittoresco centro del villaggio di Savognin, a pochi passi dal popolare lago balneabile Barnagn. Anche le funivie di Savognin e il noto parc...
Dettagli immobile
- Disponibile dal
- Su accordo
- Stanze
- 2.5
- Anno di ristrutturazione
- 2025
- Superficie abitabile
- 60 m²
- Superficie utilizzabile
- 60 m²
- Piano
- 2°




