Appartamento in vendita - 1958 Uvrier
Perché amerai questa proprietà
Giardino spazioso di 74 m²
Terrazza di 10 m² per rilassarsi
Design cucina aperta moderna
Organizza una visita
Prenota una visita con Schalcher oggi!
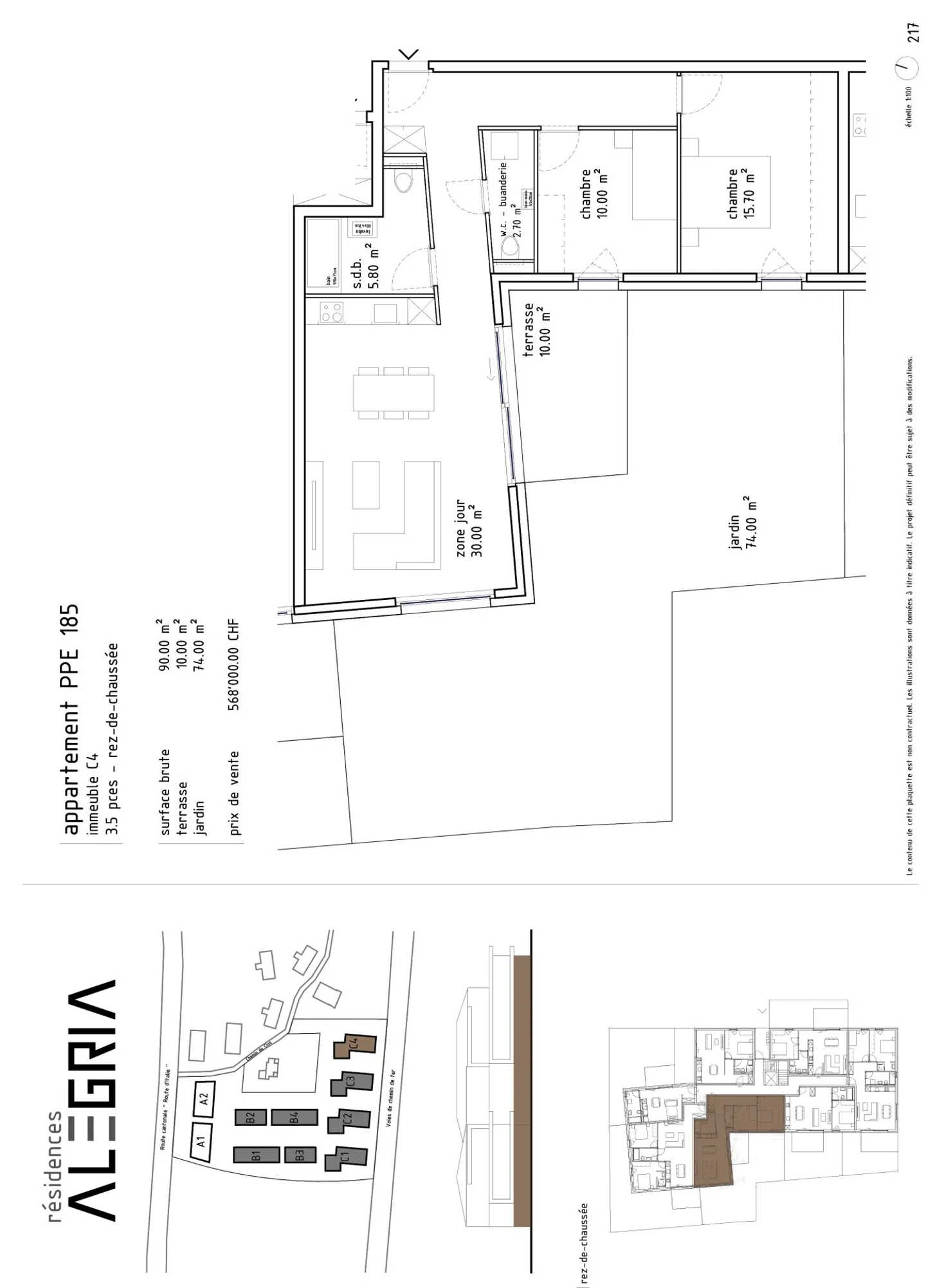
Vi presentiamo la promozione Alegria, situata a Uvrier, al chemin du Clos, nel comune di Sion. Sarà disponibile nel 2026.
Piano giardino:
L'appartamento numero 185 nel edificio C4, beneficia di:
1 Ingresso con armadio
2 Camere
1 Bagno con vasca
1 Toilette per visitatori
1 Cucina attrezzata aperta sulla zona pranzo/soggiorno
1 Terrazza di 10 m2
1 Giardino di 74 m2
1 Cantina (C147)
1 Posto auto interno annesso (PS166) Al prezzo di CHF 35'000.- in aggiunta obbligatorio
Visita e dossier su richiesta...
Dettagli immobile
- Disponibile dal
- Su accordo
- Stanze
- 3.5
- Anno di costruzione
- 2024
- Superficie abitabile
- 90 m²
- Piano
- Terra




