Appartamento in vendita - 1926 Fully
Perché amerai questa proprietà
Spazio abitativo luminoso
Terrazza giardino privata
Posizione tranquilla e soleggiata
Organizza una visita
Prenota una visita con John oggi!
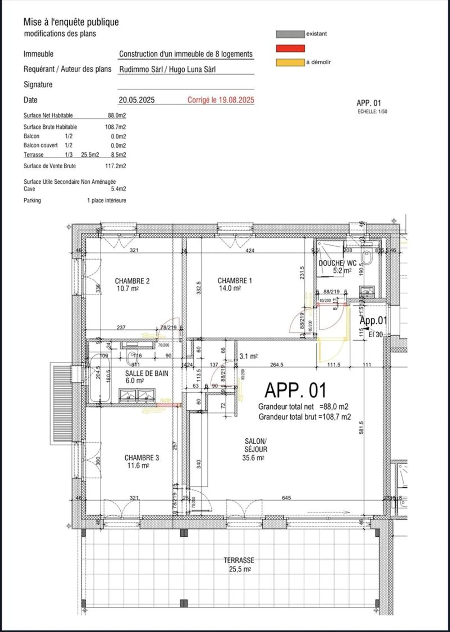
Appartamento 4.5 stanze - nuovo - fully
Offriti un ambiente abitativo privilegiato con questa bellissima casa a schiera di 4.5 stanze, situata in un piccolo complesso residenziale con sole 8 appartamenti a Fully.
Caratteristiche dell'appartamento:
- Spazio perfettamente progettato,
- 3 camere da letto accoglienti e luminose,
- 2 docce/WC,
- Ampio soggiorno con cucina aperta, ideale per ricevere con accesso alla terrazza e al giardino,
- Cantina privata inclusa.
Posti auto disponibili a pagamento: Interno a partire da CHF 20'000, Ester...
Dettagli immobile
- Disponibile dal
- 20.12.2025
- Stanze
- 4.5
- Anno di costruzione
- 2025
- Superficie abitabile
- 134 m²
- Superficie utilizzabile
- 134 m²
- Piano
- Terra



