Appartamento in vendita - Dorfstrasse 19, 9621 Oberhelfenschwil
Perché amerai questa proprietà
Vista panoramica mozzafiato
Soluzioni energetiche sostenibili
Design interno personalizzabile
Organizza una visita
Prenota una visita con Thomas oggi!
Nuova costruzione / prima occupazione: mfh "weitblick" / appartamento 2½ locali_piano terra
Informazioni sul progetto di nuova costruzione
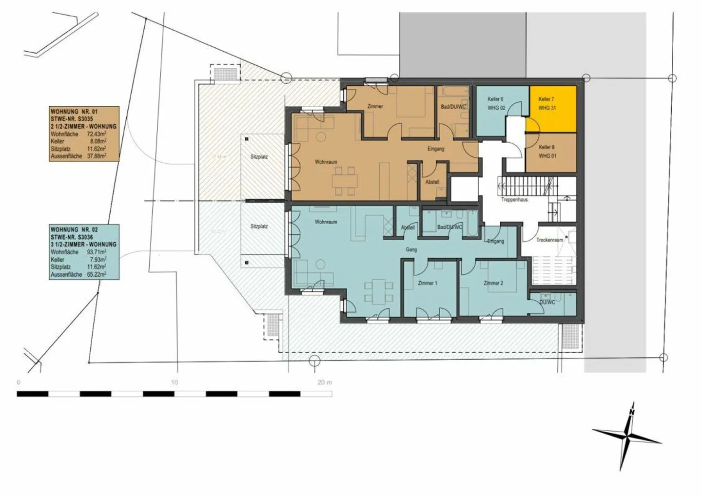
Nel centro del villaggio di Oberhelfenschwil, sta sorgendo un edificio residenziale in standard di proprietà con un totale di otto unità abitative. Le dimensioni degli appartamenti variano da 2,5 a 4,5 locali.
Tutti gli appartamenti sono ottimamente soleggiati grazie alla loro posizione e disposizione e offrono una vista mozzafiato. I piani sono moderni e riflettono lo spirito del tempo.
L'edificio residenziale dispone di un ascensore e per ogni appart...
Dettagli immobile
- Disponibile dal
- 01.07.2026
- Stanze
- 2.5
- Anno di costruzione
- 2025
- Superficie abitabile
- 72 m²
- Superficie utilizzabile
- 72 m²
- Piano
- Terra



