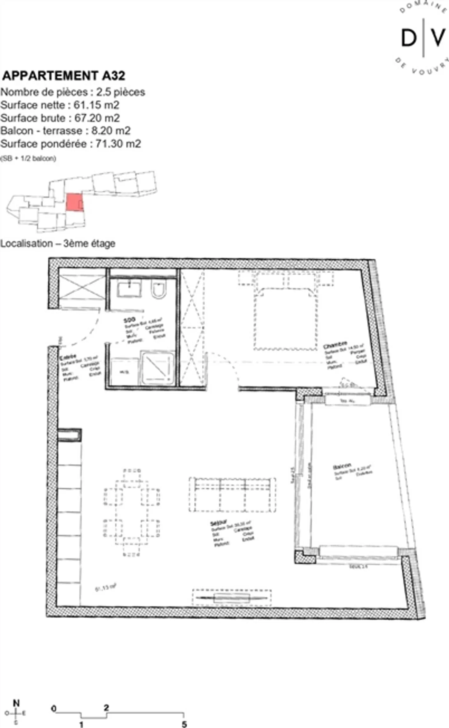
Appartamento in vendita - 1896 Vouvry
2.5 stanze • 3° piano
CHF 400’000
-
Perché amerai questa proprietà
Design moderno ovunque
Ampio spazio esterno
Posizione residenziale tranquilla
Organizza una visita
Prenota una visita oggi!
Dettagli immobile
- Disponibile dal
- Su accordo
- Stanze
- 2.5
- Anno di costruzione
- 2026
- Piano
- 3°
Caratteristiche
Garage
Balcone
Parcheggio
Agenzia
Nessun dettaglio dell'agenzia disponibile
Online da
29/01/2026
3 giorni fa
Località
1896 Vouvry



