Appartamento in vendita - 1873 Champoussin
Perché amerai questa proprietà
Soggiorno luminoso
Accesso al balcone privato
Vicino alle piste da sci
Organizza una visita
Prenota una visita con Serhat oggi!
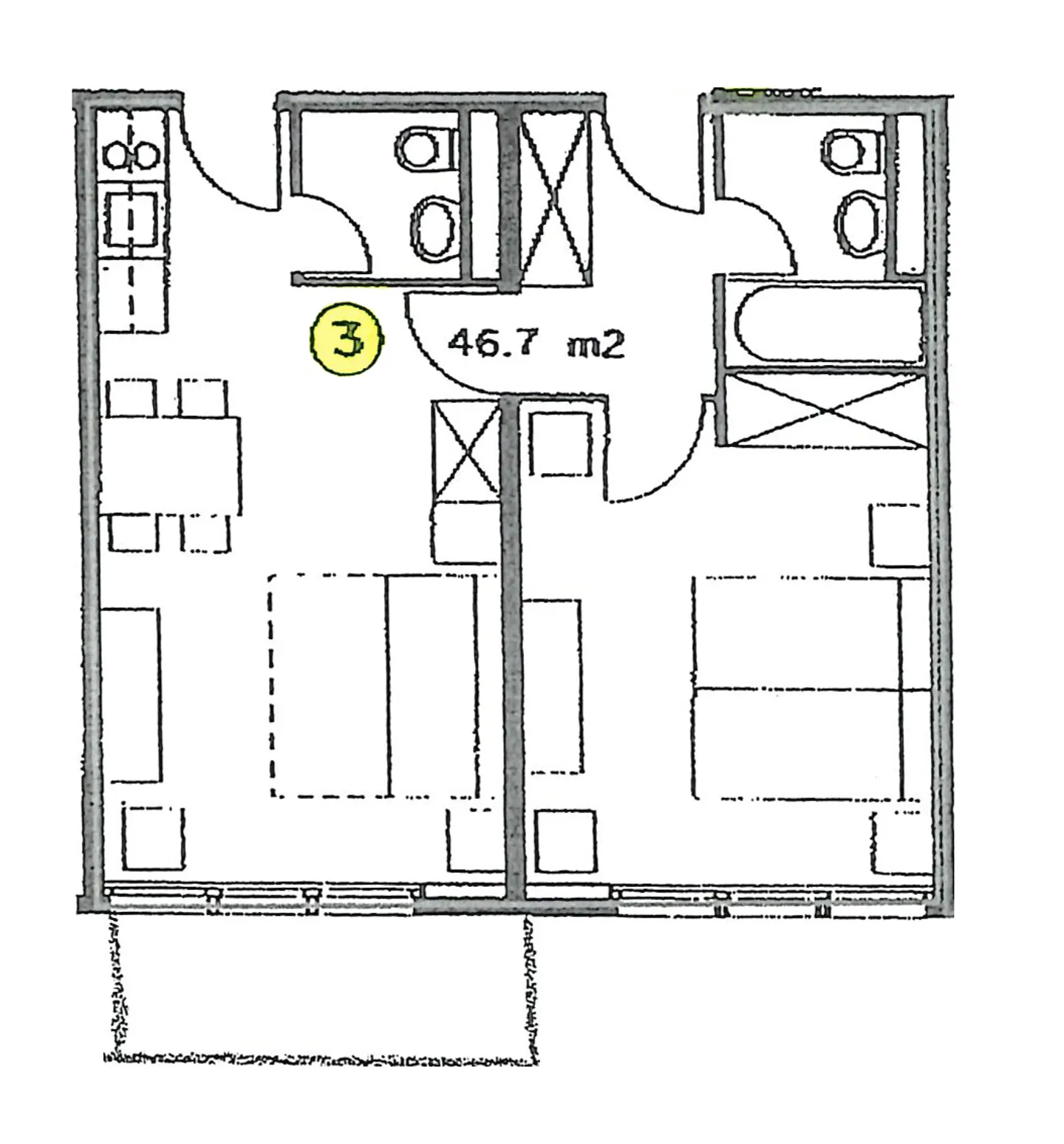
Appartamento 2,5 locali con balcone. Ideale pied-à-terre in montagna, nel cuore del villaggio, a pochi passi dalle piste, con gli sci ai piedi. Situato al 1° piano di una residenza con ascensore, questo appartamento luminoso e perfettamente organizzato di 46 m² offre comfort e praticità in tutte le stagioni.
Si compone di :
* Un soggiorno caldo e luminoso * Una camera da letto confortevole che si apre su un balcone privato * Due bagni/WC, ideali per il ritorno dallo sci * Una cucina funzionale * ...
Dettagli immobile
- Disponibile dal
- Su accordo
- Stanze
- 2.5
- Anno di costruzione
- 1980
- Anno di ristrutturazione
- 2021
- Superficie abitabile
- 46 m²
- Piano
- 1°
- Piani dell'edificio
- 4




