Appartamento in vendita - 1870 Monthey
Perché amerai questa proprietà
Terrazza spaziosa e loggia
Grandi finestre a triplo vetro
Modello 3D per visualizzazione
Organizza una visita
Prenota una visita oggi!
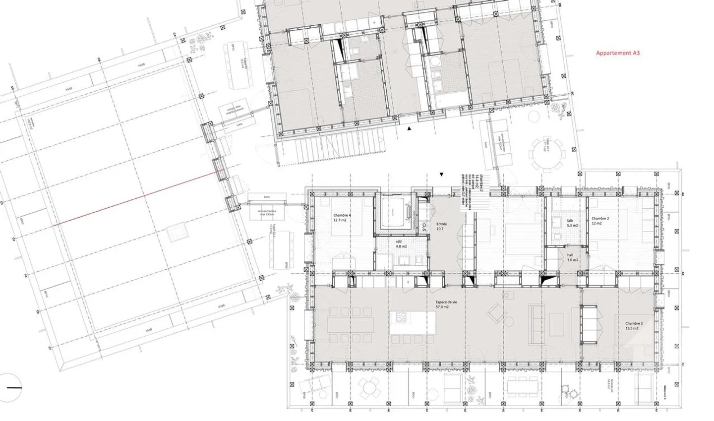
Monthey, la kaazelle 5.5 stanze in una promozione eco-responsabile
Valimmobilier SA è lieta di presentare: La Kaazelle - una nuova promozione eco-responsabile nel cuore della città di Monthey.
Questo nuovo progetto di costruzione di un piccolo edificio con 15 appartamenti si trova a pochi passi dal centro città, dai negozi e dalle scuole, tra due parchi della città in un angolo di verde. Questo nuovo edificio sarà costruito da imprenditori riconosciuti della regione in costruzione mista legno-betone. Beneficia del riscaldamento a distanza per minimizzare le spes...
Dettagli immobile
- Disponibile dal
- Su accordo
- Stanze
- 5.5
- Anno di costruzione
- 2026
- Superficie abitabile
- 137 m²
- Piano
- 3°



