Appartamento in vendita - 1852 Roche VD
Perché amerai questa proprietà
Giardino spazioso di 110 m²
Terrazza di 48 m² per rilassarsi
Cucina aperta con soggiorno
Organizza una visita
Prenota una visita oggi!
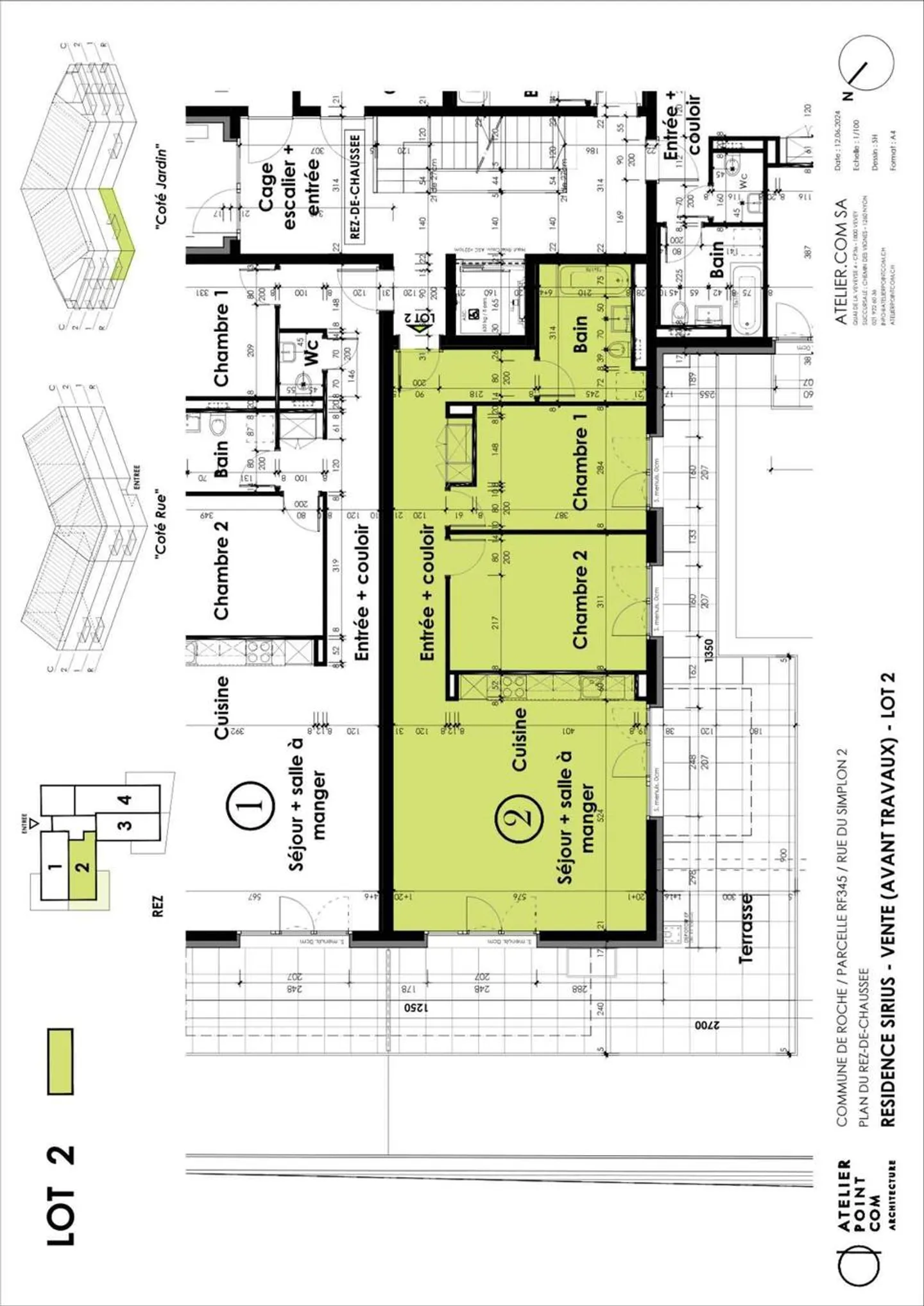
Appartamento 3.5 locali a Roche VD - Lotto 2
In una PPE di 18 appartamenti, questo appartamento di 3,5 locali al piano terra beneficia di un giardino di circa 110 m2, di una superficie abitabile di 79,4 m2 e di una terrazza di 48 m2.
È composto come segue:
- Ingresso e corridoio
- 2 camere da letto
- Bagno
- Cucina aperta
- Soggiorno/sala da pranzo con accesso alla terrazza
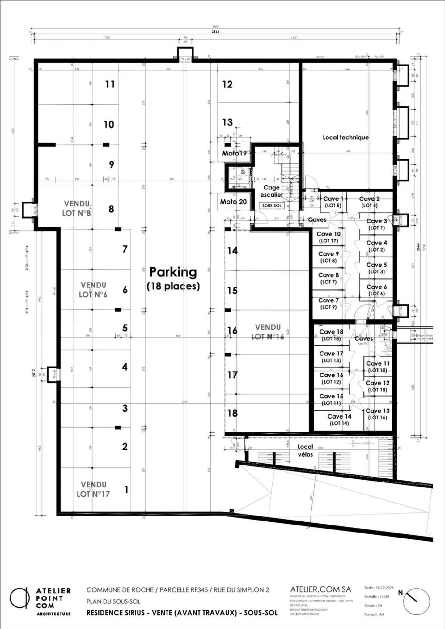
- Cantina
Un posto auto interno è disponibile oltre al prezzo di 35.000.-
Inizio dei lavori febbraio 2025.
Consegna autunno 2026.
Link al sito web della promozione: https:...
Dettagli immobile
- Disponibile dal
- 30.09.2026
- Stanze
- 3.5
- Anno di costruzione
- 2026
- Superficie abitabile
- 79 m²
- Superficie utilizzabile
- 79 m²
- Piano
- Terra



