1 / 8

Appartamento in affitto - 1852 Roche VD

4.5 rooms • 108 m² • 2° piano
CHF 810’000.-
CHF 7’168 m²

Perché amerai questa proprietà

Ampio balcone di 10 m²

Cucina aperta moderna

Accesso alla terrazza dal soggiorno

Organizza una visita

Prenota una visita con Breguet oggi!

Breguet Lucien
Régie Duboux SA | Lausanne
Questa descrizione è stata tradotta automaticamente da Tedesco.

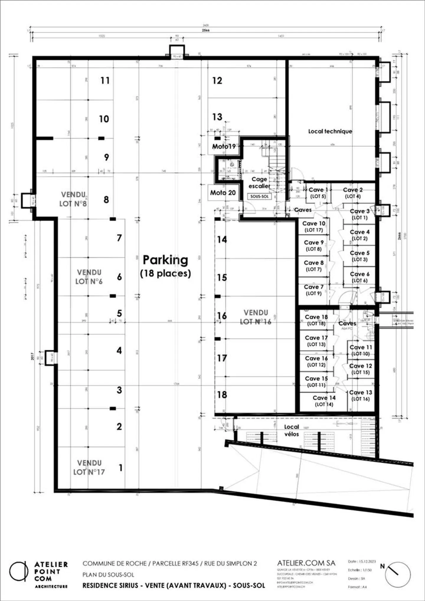
Appartamento 3.5 locali a roche vd - lotto 14

In una PPE con 18 appartamenti, questo appartamento di 4.5 locali ha una superficie abitabile di 108,4 m2 e un balcone di 10 m2.

È composto da:

- Ingresso e corridoio

- 3 camere da letto

- Bagno

- Doccia

- Cucina aperta

- Soggiorno/pranzo con accesso alla terrazza

- Cantina

Un posto auto interno è disponibile per un prezzo aggiuntivo di 35'000.-.

Inizio dei lavori febbraio 2025.

Completamento autunno 2026.

Link al sito web del complesso residenziale: https://residence-sirius.ch/index.php

Dettagli immobile

Disponibile dal
30.09.2026
Stanze
4.5
Anno di costruzione
2026
Superficie abitabile
108
Superficie utilizzabile
113
Piano

Caratteristiche

Balcone
Ascensore
Nuova costruzione

Punti di interesse nelle vicinanze

Trasporto pubblico - 0.7 km

Agenzia

Régie Duboux SA | Lausanne
Régie Duboux SA | Lausanne
Indirizzo:Rue du Petit-Chêne 26, 1003, Lausanne
(3 reviews)
Ref: 79529-1494162

Località

1852 Roche VD

Fonti