Appartamento in vendita - 1817 Brent
Perché amerai questa proprietà
Ristrutturato con finiture di qualità
Zona residenziale tranquilla
Pannelli fotovoltaici installati
Organizza una visita
Prenota una visita con Serhat oggi!
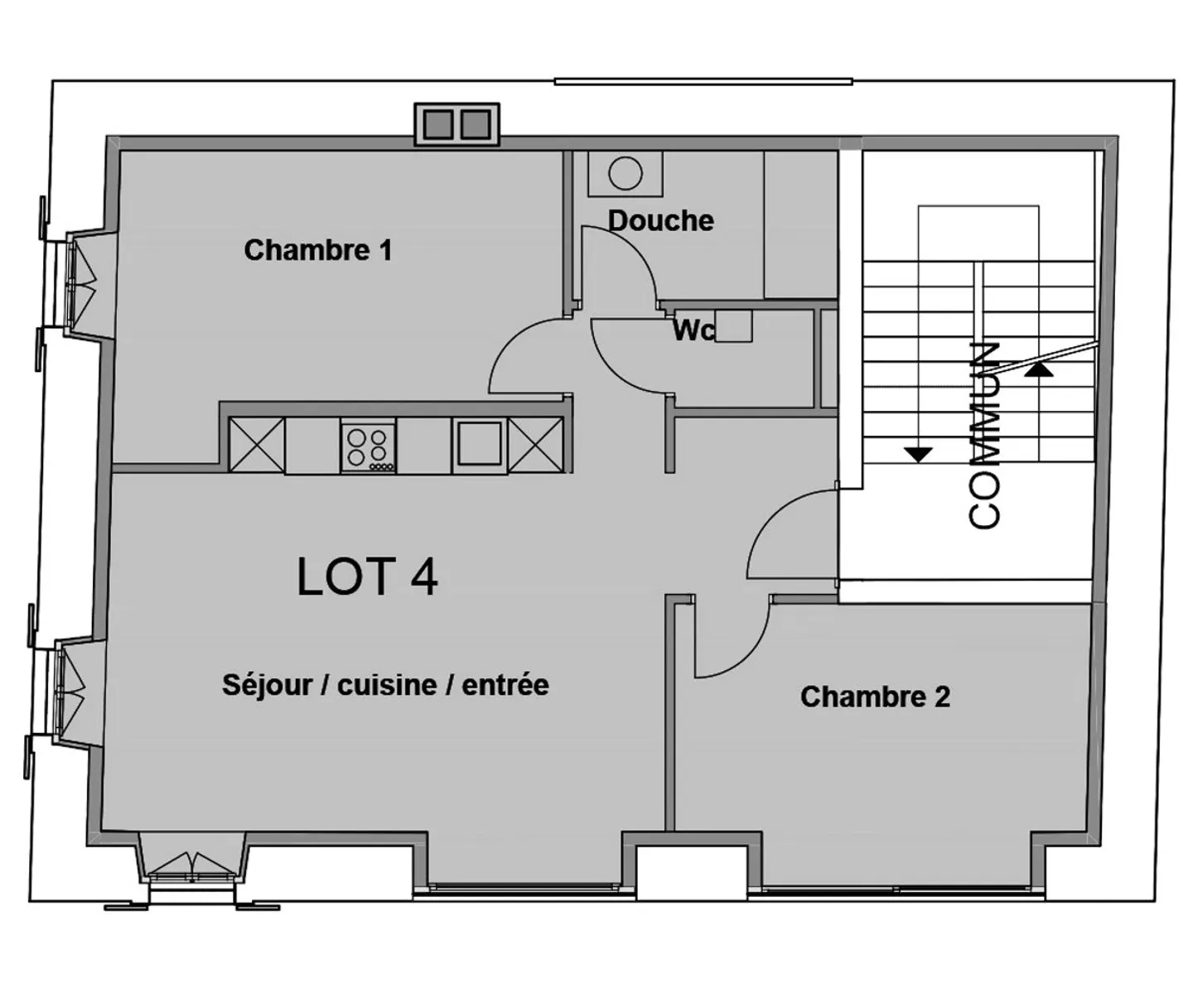
Appartement de 3,5 pièces avec belle vue.
Appartement de 3,5 pièces avec belle vue - Maison RénovéeSitué dans un quartier calme et résidentiel, cet appartement bénéficie d'un cadre de vie agréable, offrant confort et tranquillité.
Description du bien :
- Hall d'entrée
- Cuisine ouverte sur un spacieux séjour.
- 2 chambres lumineuses.
- Salle de douche.
- WC séparé.
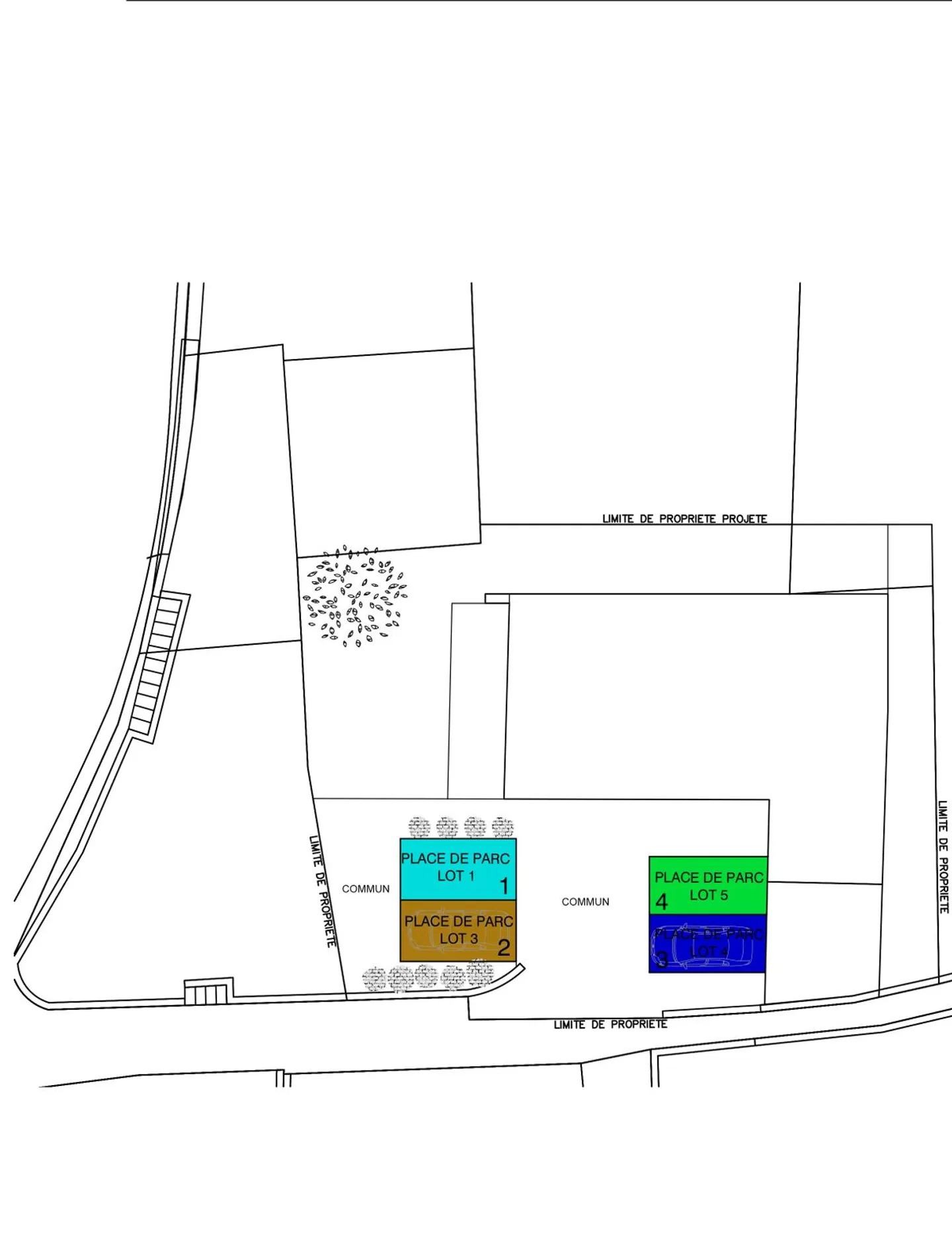
- Place de parc extérieure privative à Fr. 20'000.-- en plus du prix de vente....
Points forts :
- Rénovation complète et de qualité dans toute la maison.
- Emplacement calme, proche des commodités....
Dettagli immobile
- Disponibile dal
- 01.06.2026
- Stanze
- 3.5
- Anno di costruzione
- 1869
- Anno di ristrutturazione
- 2026
- Superficie abitabile
- 65 m²
- Piano
- 2°
- Piani dell'edificio
- 3




