Appartamento in vendita - Grüningerstrasse 181, 8626 Ottikon (Gossau ZH)
Perché amerai questa proprietà
Fascino storico e design moderno
Spazi esterni privati per tutti
Vita sostenibile con energia solare
Organizza una visita
Prenota una visita con Gino oggi!
Come piccola guardia della comunità di Gossau nell'Oberland zurighese, Ottikon si trova tranquillo e immerso nella natura. Qui si gode della vita di campagna con collegamento alla città. L'autobus impiega dieci minuti per Wetzikon, sull'autostrada Forch il viaggio in auto privata per Uster dura solo dodici minuti, per Zurigo solo circa venti minuti. Nel villaggio ben curato e cresciuto, si sta creando un ensemble unico che combina spazio per stili di vita individuali con un vicinato cordiale: La...
Dettagli immobile
- Disponibile dal
- Su accordo
- Stanze
- 6.5
- Anno di costruzione
- 2025
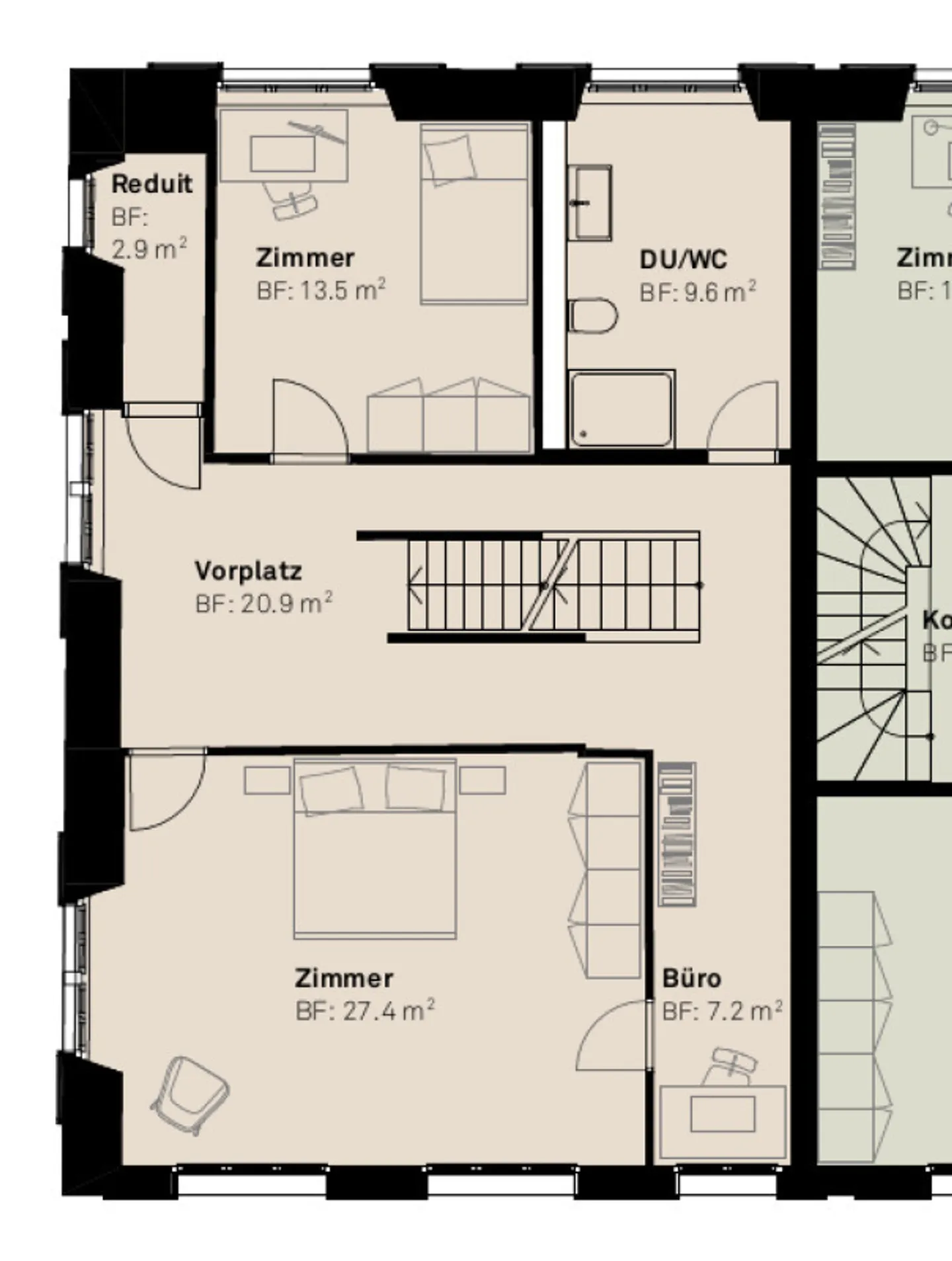
- Superficie abitabile
- 233 m²
- Superficie giardino
- 96 m²
- Piani dell'edificio
- 3



