1 / 9

Appartamento in vendita - Grüningerstrasse 181, 8626 Ottikon (Gossau ZH)

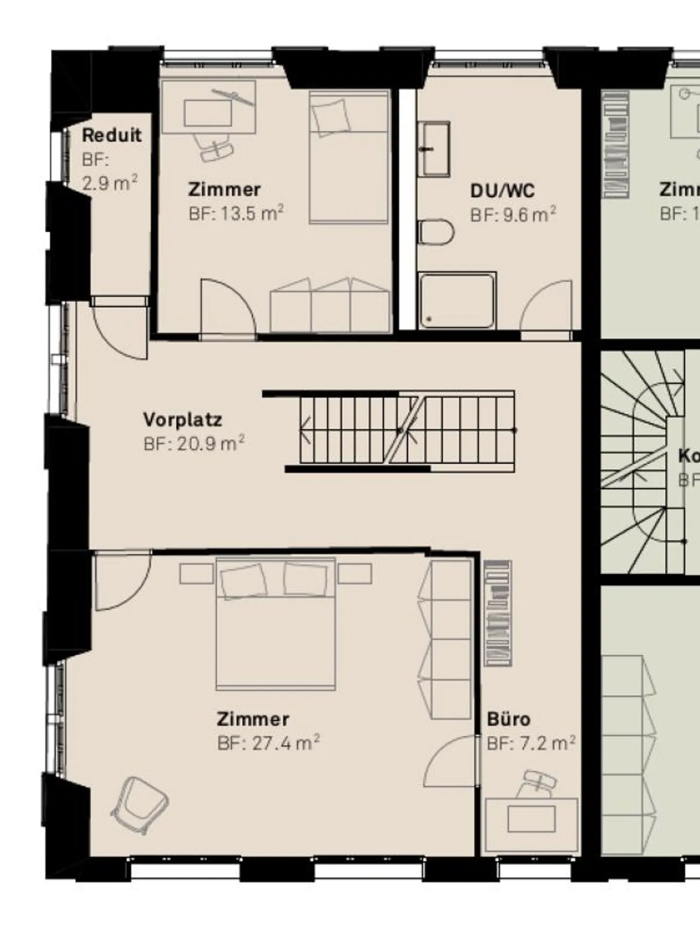
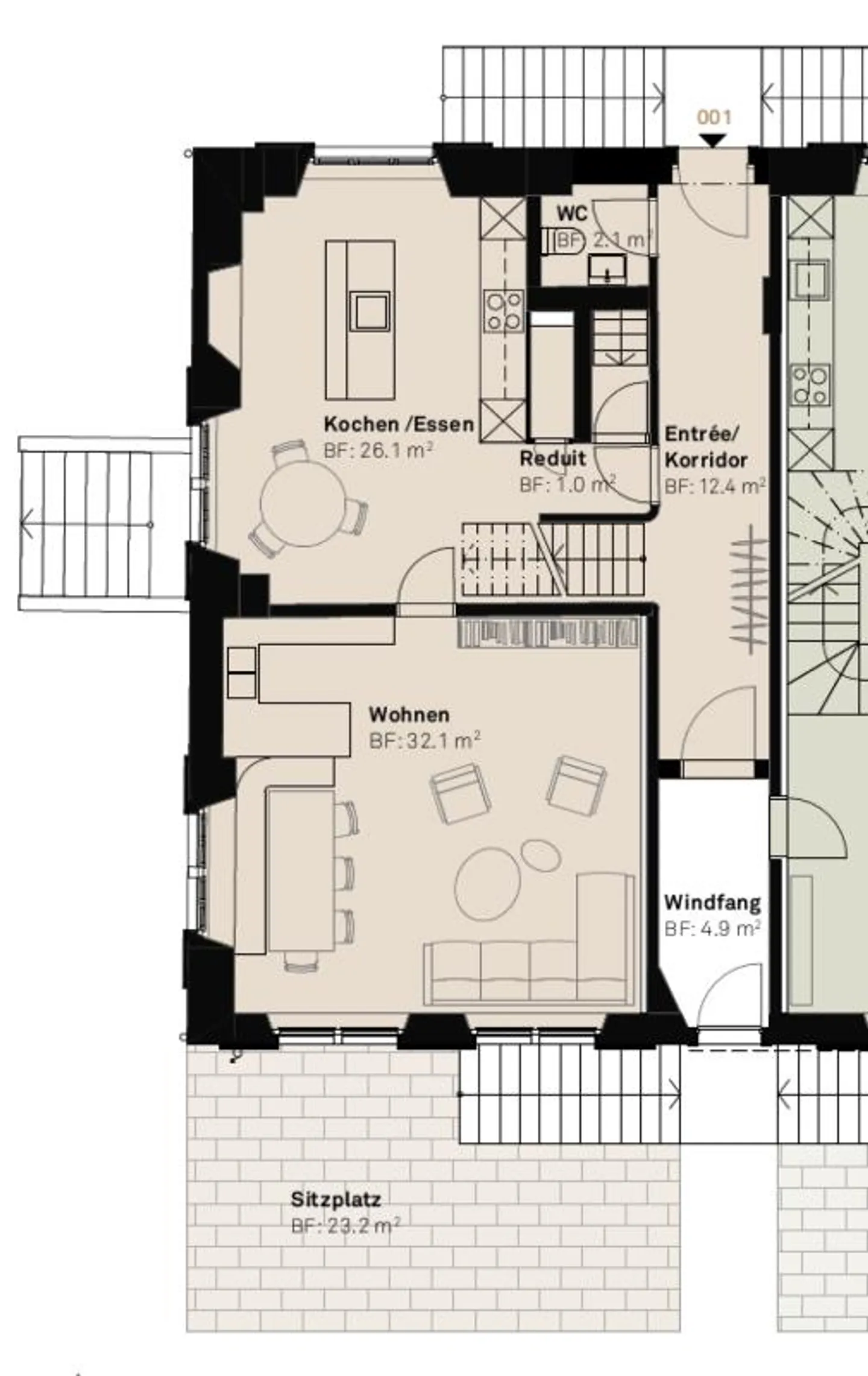
6.5 stanze • 233 m² • Piano terra
CHF 2’190’000.-
CHF 9’399 m²

Perché amerai questa proprietà

Fascino storico e design moderno

Spazi esterni privati per tutti

Vita sostenibile con energia solare

Organizza una visita

Prenota una visita con Gino oggi!

Gino Ponsillo
art-im IMMOBILIEN AG
Questa descrizione è stata tradotta automaticamente da Tedesco.

Inizio dei lavori «dorf ottikon»: spazio e scelte abitative in un ensemble unico

Come piccola vedetta del comune di Gossau nell'Oberland zurighese, Ottikon si trova tranquilla e immersa nella natura. Qui si può godere della vita di campagna con collegamenti in città. L'autobus impiega dieci minuti per Wetzikon, e il viaggio in auto privata per Uster dura solo dodici minuti sull'autostrada Forch, e per Zurigo solo circa venti minuti.

Nel villaggio ben curato e in crescita, si sta creando un ensemble unico che combina spazio per stili di vita individuali con un vicinato cordial...

Dettagli immobile

Disponibile dal
01.12.2026
Stanze
6.5
Anno di costruzione
2025
Superficie abitabile
233
Piano
Terra
Piani dell'edificio
3

Caratteristiche

Garage
Balcone
Parcheggio
Tv via cavo
Lavatrice
Asciugatrice
Adatto ai bambini
Animali ammessi

Agenzia

art-im IMMOBILIEN AG
Indirizzo:Florastrasse 18a, 8610, Uster
Ref: 0072_Um_A001_6.5_PU6
Online da
26/08/2025
2 mesi fa

Località

Grüningerstrasse 181, 8626 Ottikon (Gossau ZH)

Fonti