Appartamento in vendita - 1773 Léchelles
Perché amerai questa proprietà
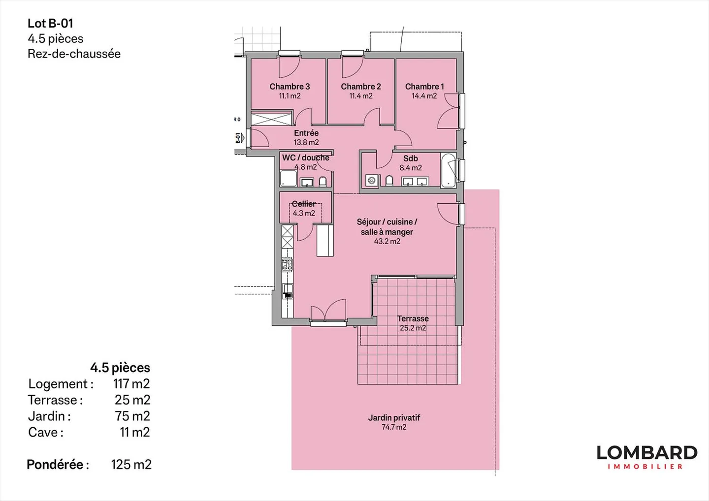
Ampia terrazza di 25 m2
Finiture di alta qualità
Posizione tranquilla nel villaggio
Organizza una visita
Prenota una visita con Maxime oggi!
Nuovo appartamento di 4.5 stanze con giardino
In vendita a Léchelles: bellissimo nuovo appartamento di 4.5 stanze al piano terra (Edificio B) in un piccolo condominio con 9 unità e ascensore.
Scopri la nuova promozione << Résidences des Hirondelles >> a Léchelles. Questo appartamento è nuovo e immediatamente disponibile.
* Grande appartamento di 4.5 stanze con 126 m2 di superficie abitabile
* Cucina completamente attrezzata (Miele)
* 2 bagni
* Armadi a muro all'ingresso dell'appartamento
* Materiali e finiture di alta qualità (tende m...
Dettagli immobile
- Disponibile dal
- 30.01.2026
- Stanze
- 4.5
- Anno di costruzione
- 2025
- Superficie abitabile
- 126 m²




