Appartamento in vendita - 1773 Léchelles
Perché amerai questa proprietà
Ampia terrazza di 25 m2
Finiture di alta qualità
Posizione tranquilla nel villaggio
Organizza una visita
Prenota una visita con Maxime oggi!
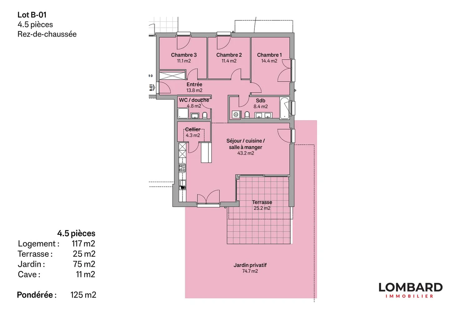
Neue 4.5-Zimmer-Wohnung mit Garten
Zu verkaufen in Léchelles: wunderschöne neue 4.5-Zimmer-Wohnung im Erdgeschoss (Gebäude B) in einem kleinen Wohnhaus mit 9 Einheiten und Aufzug.
Entdecken Sie die neue Promotion "Résidences des Hirondelles" in Léchelles. Diese Wohnung ist neu und sofort verfügbar.
* Große 4.5-Zimmer-Wohnung mit 126 m2 Wohnfläche
* Volleingerichtete Küche (Miele)
* 2 Badezimmer
* Einbauschränke am Eingang der Wohnung
* Materialien und Ausstattungen von hoher Qualität (motorisierte Stores, Dreifachverglasung, Mückenschu...
Dettagli immobile
- Disponibile dal
- 30.01.2026
- Stanze
- 4.5
- Anno di costruzione
- 2025
- Superficie abitabile
- 126 m²




