Attico in vendita - Haldenweg 17, 4450 Sissach
Perché amerai questa proprietà
Vista panoramica libera
Accesso diretto con ascensore
Due terrazze spaziose di 70m²
Organizza una visita
Prenota una visita oggi!
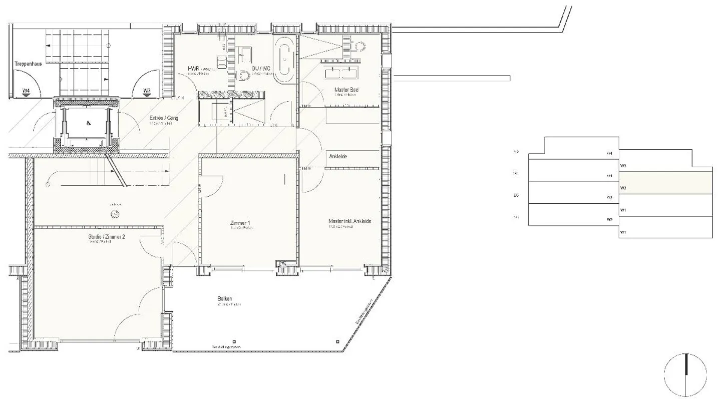
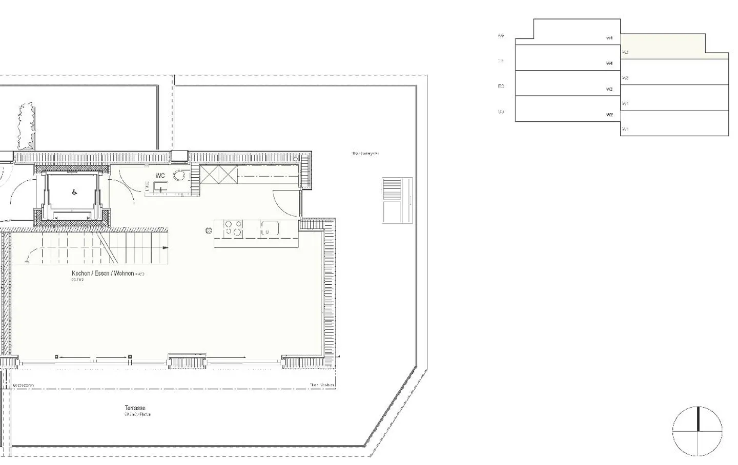
Sole, legno & acqua - vita in attico tranquilla presso l'idilliaco böschmattbächlein
Sole, legno e acquaIn una delle posizioni più belle e migliori di Sissach, stiamo creando nuove ed eleganti proprietà residenziali con una varietà di punti salienti per te:Vista panoramica non ostacolataSituato all'inizio del Sonnenhang di Sissach con ottima orientamento a sudPosizione centrale e tranquilla a pochi passi dal centro del paeseAmpio appartamento attico su due livelli con accesso diretto all'ascensore ai due piani - accogli i tuoi ospiti e amici direttamente nel raffinato piano atti...
Dettagli immobile
- Disponibile dal
- Su accordo
- Stanze
- 4.5
- Anno di costruzione
- 2026
- Piano
- 2°



