1 / 7

Appartamento in affitto - 1681 Billens

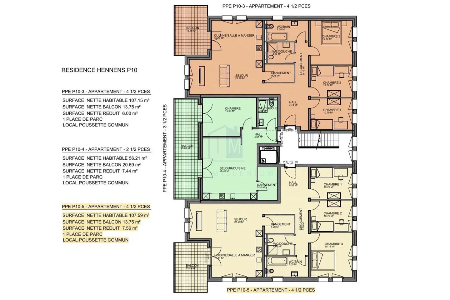
4.5 rooms • 107 m² • 1° piano
CHF 700’000.-
CHF 6’542 m²

Perché amerai questa proprietà

Vista mozzafiato sulle Alpi

Cucina aperta spaziosa

Finiture moderne ovunque

Organizza una visita

Prenota una visita con Firas oggi!

Firas AWILÉ
IMMO MILLÉNIUM SARL
Questa descrizione è stata tradotta automaticamente da Francese.

Inizio dei lavori; bel appartamento 4 ½ in stile da cogliere!

**RESIDENZA << LA YANNA >>

**

Benvenuti nel pittoresco villaggio di Billens-Hennens, un luogo tranquillo e piacevole in cui vivere con una vista mozzafiato sulle Alpi e sulla storica città di Romont.

Questo bel appartamento di 4 ½ stanze è spazioso e luminoso con una cucina aperta e un bel grande balcone.

La disposizione intelligente di questo appartamento offre una sensazione di spazio e un comfort unico. Non appena varcherete la soglia, sarete accolti da un'abbondanza di luce naturale che inond...

Dettagli immobile

Disponibile dal
Su accordo
Stanze
4.5
Bagni
2
Anno di costruzione
2025
Superficie abitabile
107
Superficie balcone
14
Piano

Caratteristiche

Balcone
Accessibile ai disabili

Agenzia

IMMO MILLÉNIUM SARL
Indirizzo:La Pala d'Amont 16, 1731, Ependes FR
Firas AWILÉ
Ref: BI-Mou-C-P10-05

Località

1681 Billens

Fonti