Appartamento in vendita - 1680 Romont FR
Perché amerai questa proprietà
Ampio soggiorno luminoso
Garage privato in centro
Travi autentiche per charme
Organizza una visita
Prenota una visita oggi!
Incantevole appartamento di 2,5 stanze nel cuore di romont
Fascino, volume e redditività nel cuore di Romont - 2,5 stanze con garage privato
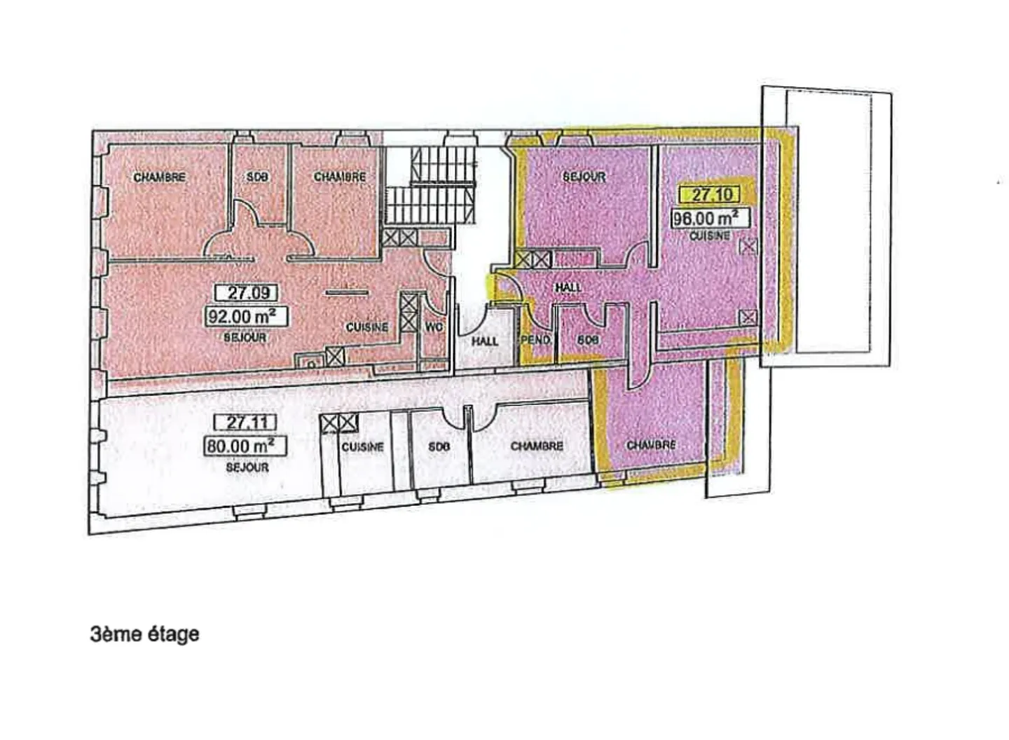
Nel centro di Romont, a pochi passi dai negozi e dalla vita urbana, si trova un ampio appartamento di 2,5 stanze che unisce fascino antico e volumi generosi. Con i suoi 96 m² di superficie abitabile lorda, travi a vista e configurazione attraversante, questa proprietà saprà conquistare sia gli amanti del fascino che gli investitori esperti.
Un interno unico e accogliente:
- Ampio soggiorno inondato di luce, ideale...
Dettagli immobile
- Disponibile dal
- Su accordo
- Stanze
- 2.5
- Superficie abitabile
- 96 m²
- Superficie utilizzabile
- 96 m²
- Piano
- 3°



