Duplex in vendita - 1660 Château-d'Oex
Perché amerai questa proprietà
Vista mozzafiato sulle montagne
Due balconi soleggiati
Servizi condivisi disponibili
Organizza una visita
Prenota una visita con Nadia oggi!
Duplex mansardato piacevole in vendita a Château-d'Oex
Appartamento duplex mansardato affascinante in un quartiere con vista sul villaggio di Château-d'Oex!
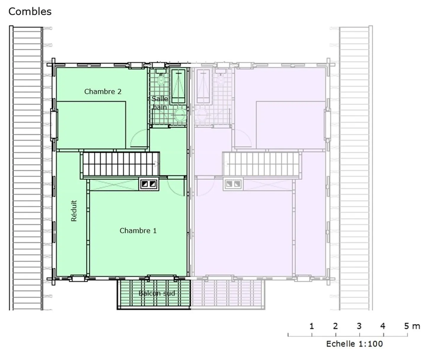
Si trova in una piccola PPE con 3 appartamenti in un tradizionale chalet in legno e offre una bella vista sulle montagne dai suoi 2 balconi.
Ecco la sua disposizione:
* Accesso tramite una scala esterna
* area d'ingresso condivisa
* una cucina attrezzata
* un soggiorno con stufa a legna e il suo balcone ad angolo
* un bagno per gli ospiti
* 2 camere da letto (una con balcone)
* 1 bagno con vasca
* un ri...
Dettagli immobile
- Disponibile dal
- Su accordo
- Stanze
- 3.5
- Anno di costruzione
- 1986
- Volume dell'edificio
- 1135 m³
- Piani dell'edificio
- 3



