1 / 9

Appartamento in affitto - 1611 Le Crêt-près-Semsales

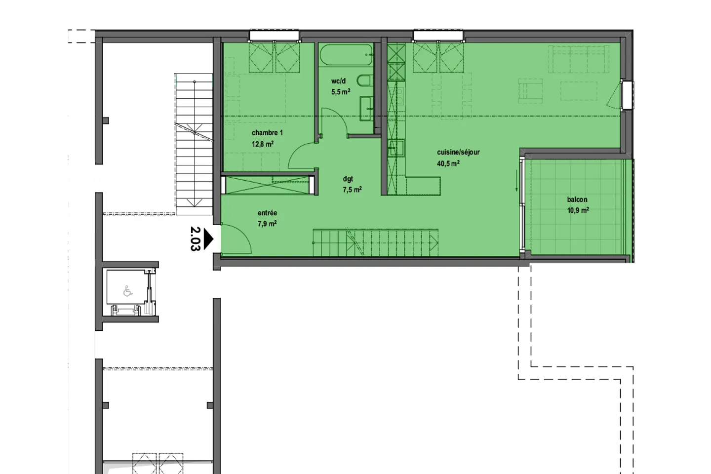
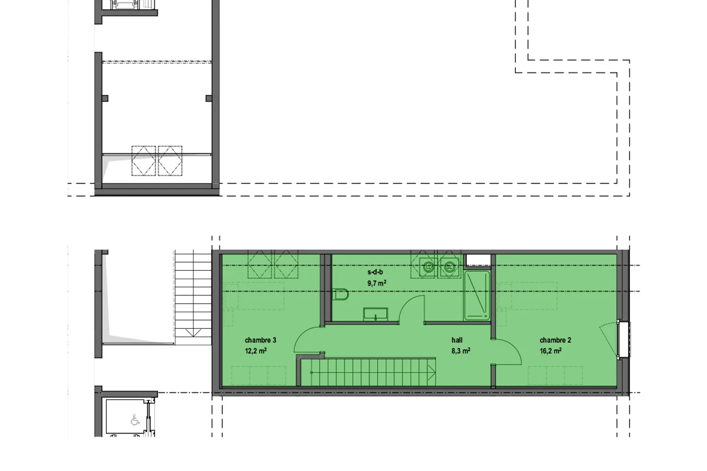
4.5 rooms • 126 m² • 2° piano
CHF 810’000.-
CHF 6’183 m²

Perché amerai questa proprietà

Balcone con vista campagna

Riscaldamento geotermico ecologico

Finiture interne personalizzabili

Organizza una visita

Prenota una visita oggi!

Yves Guillet Immobilier SA
Questa descrizione è stata tradotta automaticamente da Francese.

Nel cuore del villaggio / 2.04

NUOVO ED ESCLUSIVO:

SOGNATE UNA VITA TRANQUILLA IN CAMPAGNA?

Iniziamo la ristrutturazione di una fattoria protetta creando 10 appartamenti in PPE, nel cuore del villaggio, in un contesto rilassante con una magnifica vista sulla campagna. Il villaggio di LE CRET di circa 1300 abitanti, fa parte del comune di La Verrerie situato in Haute-Veveyse, a distanza uguale dai quattro poli regionali di Châtel-St-Denis, Oron, Romont e Bulle, il Comune di La Verrerie confina con i distretti di Glâne e Gruyèr...

Dettagli immobile

Disponibile dal
28.02.2027
Stanze
4.5
Anno di costruzione
2026
Superficie abitabile
126
Superficie utilizzabile
131
Piano

Caratteristiche

Garage
Nuova costruzione

Agenzia

Yves Guillet Immobilier SA
Indirizzo:Rue de la Condémine 66, 1630 Bulle
Ref: A-388.iu9z6.wv5q7

Località

1611 Le Crêt-près-Semsales

Fonti