Appartamento in vendita - Turmstrasse 16, 8330 Pfäffikon ZH
Perché amerai questa proprietà
Spazio esterno soleggiato
Costruzione Minergie efficiente
Ampia zona giorno-pranzo
Organizza una visita
Prenota una visita con Vivian oggi!
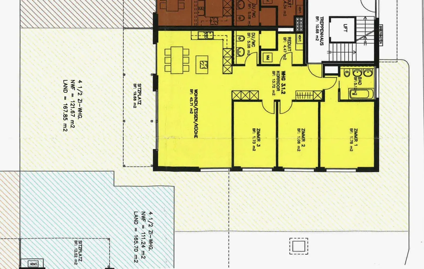
Appartamento giardino luminoso di 4 stanze a pfäffikon zh
Questo attraente appartamento giardino a Pfäffikon ZH combina un vivere inondato di luce con un'alta qualità della vita in una posizione tranquilla ma molto centrale. Registrato nel registro fondiario come appartamento di 4 stanze, è stato progettato per essere aperto e spazioso: Combinando due stanze, è stato creato un ampio soggiorno/sala da pranzo, che si affaccia direttamente sul patio soleggiato con giardino ben curato - ideale per ore di relax all'aperto.
La proprietà impressiona anche per...
Dettagli immobile
- Disponibile dal
- 23.10.2025
- Stanze
- 4.5
- Anno di costruzione
- 2006
- Superficie abitabile
- 121 m²
- Superficie terreno
- 168 m²
- Piano
- Terra



