Appartamento in vendita - Allmendstrasse 16, 2544 Bettlach
Perché amerai questa proprietà
Vista alpina mozzafiato
Cucina aperta moderna
Ampie aree esterne
Organizza una visita
Prenota una visita con Nicola oggi!
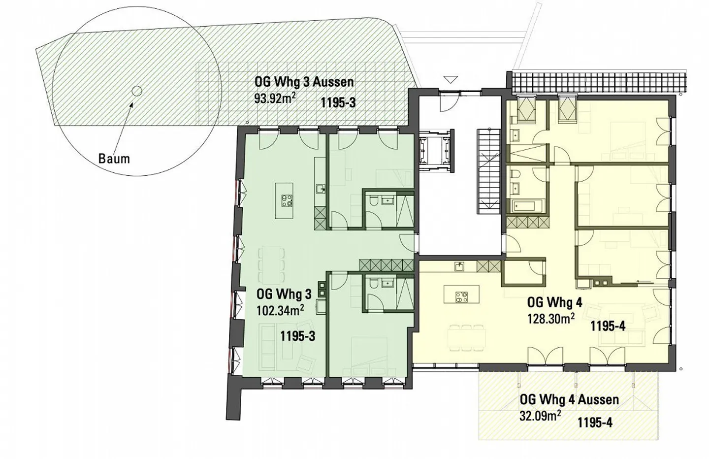
Appartamenti nuovi di alta qualità in una posizione idilliaca
In un antico casale storico di 200 anni, stanno nascendo appartamenti spaziosi e individuali, che combinano l'autenticità della proprietà esistente con un'architettura moderna. Goditi un'abitazione attraente a Bettlach in una posizione elevata e soleggiata sul versante meridionale del Giura, con una bella vista sul panorama alpino.
I cinque appartamenti esclusivi sono facilmente accessibili con l'ascensore direttamente dal garage e offrono comfort abitativo senza barriere.
Spazi abitativi ampi...
Dettagli immobile
- Disponibile dal
- Su accordo
- Stanze
- 4.5
- Anno di costruzione
- 2026
- Superficie abitabile
- 128 m²
- Piano
- 1°



