1 / 11

Duplex in affitto - Rathausstrasse 15, 4410 Liestal

3.5 rooms • 95 m²
CHF 720’000.-
CHF 7’579 m²

Perché amerai questa proprietà

Fascino di un edificio storico

Terrazza soleggiata

Ampio soggiorno

Organizza una visita

Prenota una visita oggi!

Questa descrizione è stata tradotta automaticamente da Tedesco.

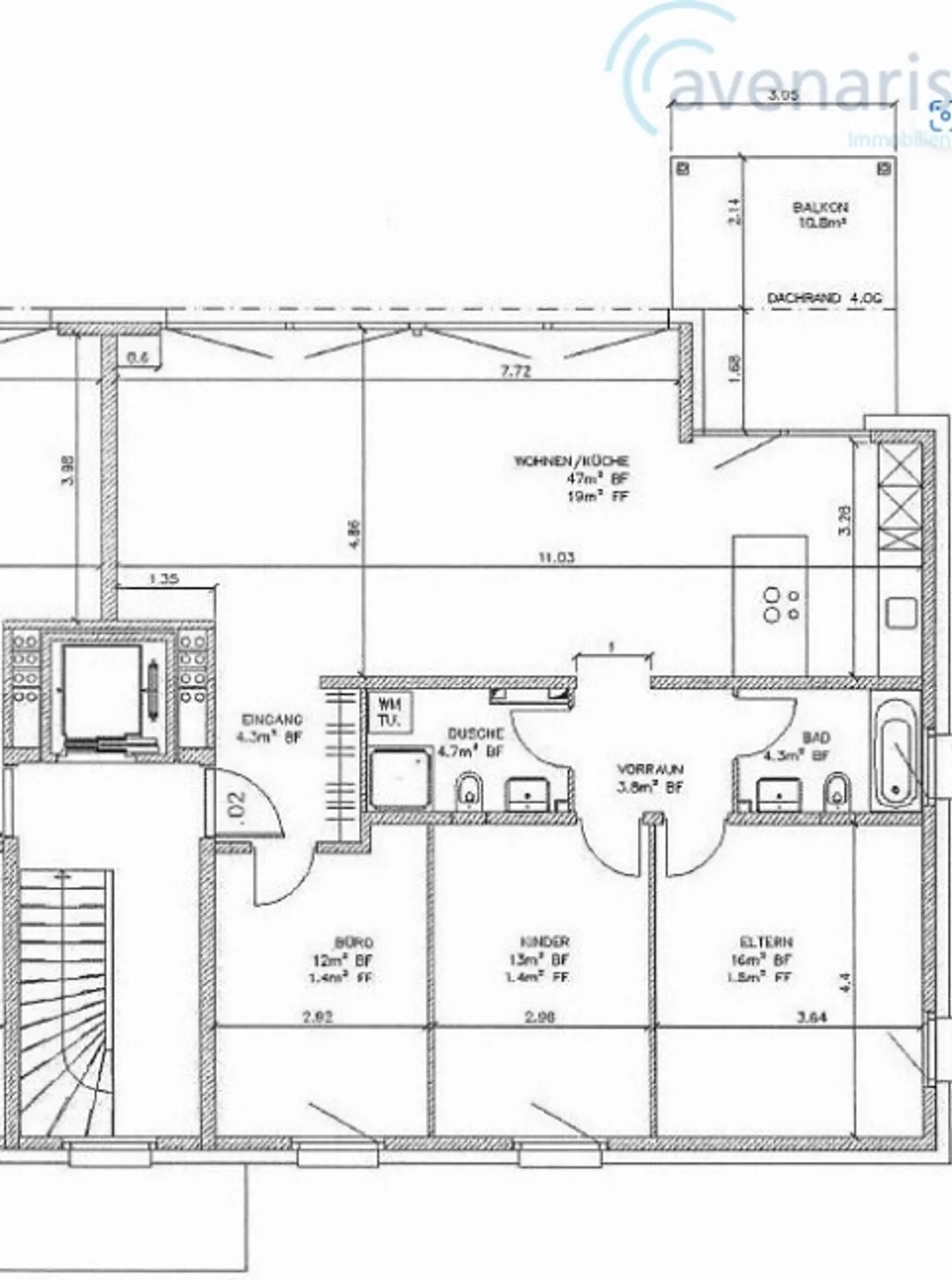
Appartamento maisonette di 3,5 stanze affascinante nel cuore della città

Questo unico appartamento maisonette di 3,5 stanze combina vita urbana e comfort elegante - il tutto in un'atmosfera tranquilla e rilassata nel cuore della città. Risiedi in un edificio storico che colpisce con una caratteristica porta in rovere e una scala elegante. Nonostante la posizione centrale, qui puoi godere di una tranquillità ristoratrice e di una sensazione abitativa particolare.

Comfort abitativo di alta qualità su tre piani

Già all'ingresso senti il carattere speciale di questo appa...

Dettagli immobile

Disponibile dal
Su accordo
Stanze
3.5
Anno di costruzione
1650
Superficie abitabile
95

Agenzia

Località

Rathausstrasse 15, 4410 Liestal

Fonti