Appartamento in vendita - Patnalerweg 15, 7204 Untervaz
Perché amerai questa proprietà
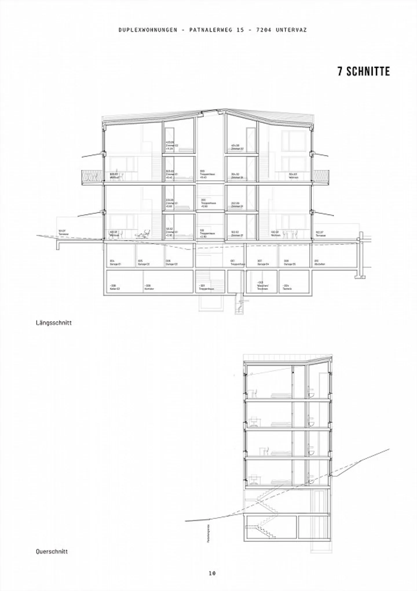
Due piani spaziosi
Vista panoramica libera
Costruzione moderna nuova
Organizza una visita
Prenota una visita con Dorji oggi!
Appartamento duplex di nuova costruzione con una buona vista non ostruita
2 piani 1°/2° piano o 3°/4° piano
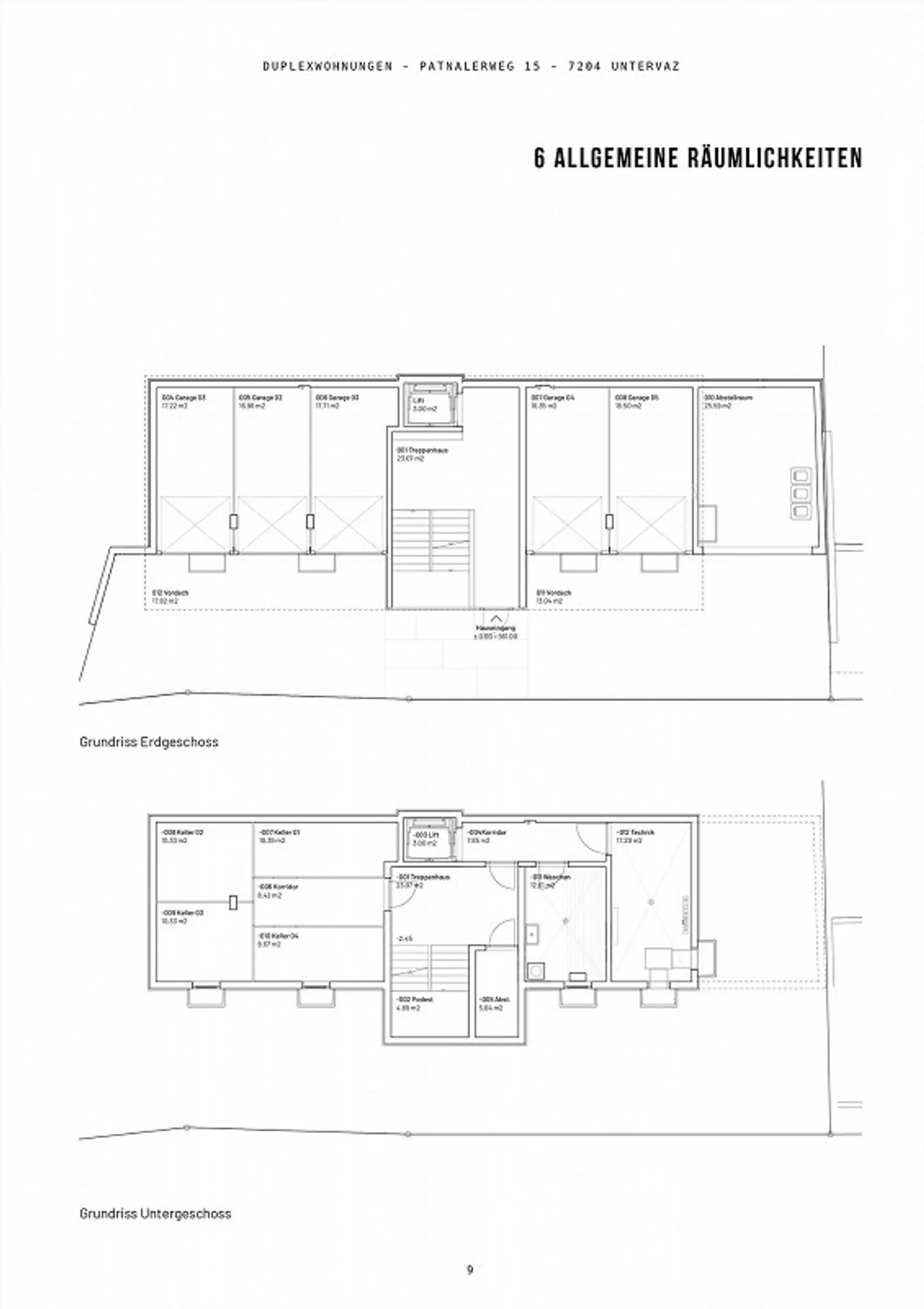
Piano terra con garage e scale
Dettagli immobile
- Disponibile dal
- Su accordo
- Stanze
- 4.5
- Superficie abitabile
- 105 m²
- Piani dell'edificio
- 5



