Appartamento in vendita - 1422 Grandson
Perché amerai questa proprietà
Vista lago mozzafiato
Ampio giardino privato
Finiture di alta qualità
Organizza una visita
Prenota una visita oggi!
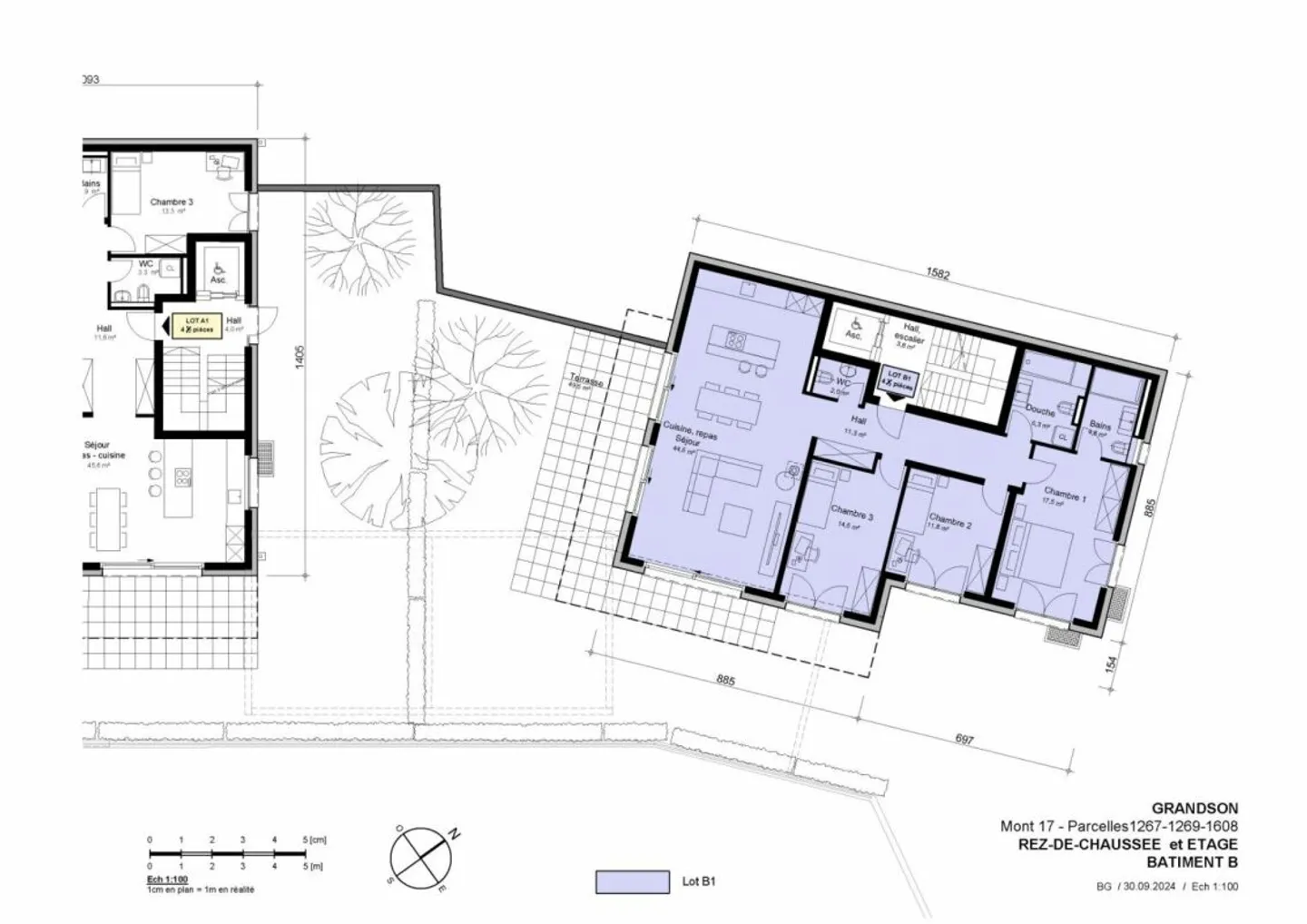
Appartement 4.5 pièces à Grandson
Avec magnifique vue sur le lac, Aux Tuileries-de-Grandson, parcelle dominants. Appartement sur tout l'étage.
Rez-de-chaussée
Hall d'entrée avec armoire vestiaire
Salle d'eau avec wc visiteurs
Cuisine ouverte avec un espace repas avec accès sur la terrasse
Séjour avec accès direct sur la terrasse
1 chambre parental avec salle d'eau douche lavabo wc
2 belles chambres
Salle de bains avec baignoire, lavabo, wc
Sous-sol
1 cave
TRES BELLE FINITIONS
Extérieurs
Grand jardin privatif avec terrasse...
Dettagli immobile
- Disponibile dal
- Su accordo
- Stanze
- 4.5
- Superficie abitabile
- 115 m²
- Superficie utilizzabile
- 115 m²
- Superficie terreno
- 1844 m²
- Piano
- Terra



