Appartamento in vendita - Dorfstrasse 14, 3661 Uetendorf
Perché amerai questa proprietà
Vista mozzafiato sulle Alpi
Sistema di riscaldamento ecologico
Ampio balcone coperto
Organizza una visita
Prenota una visita con Stefan oggi!
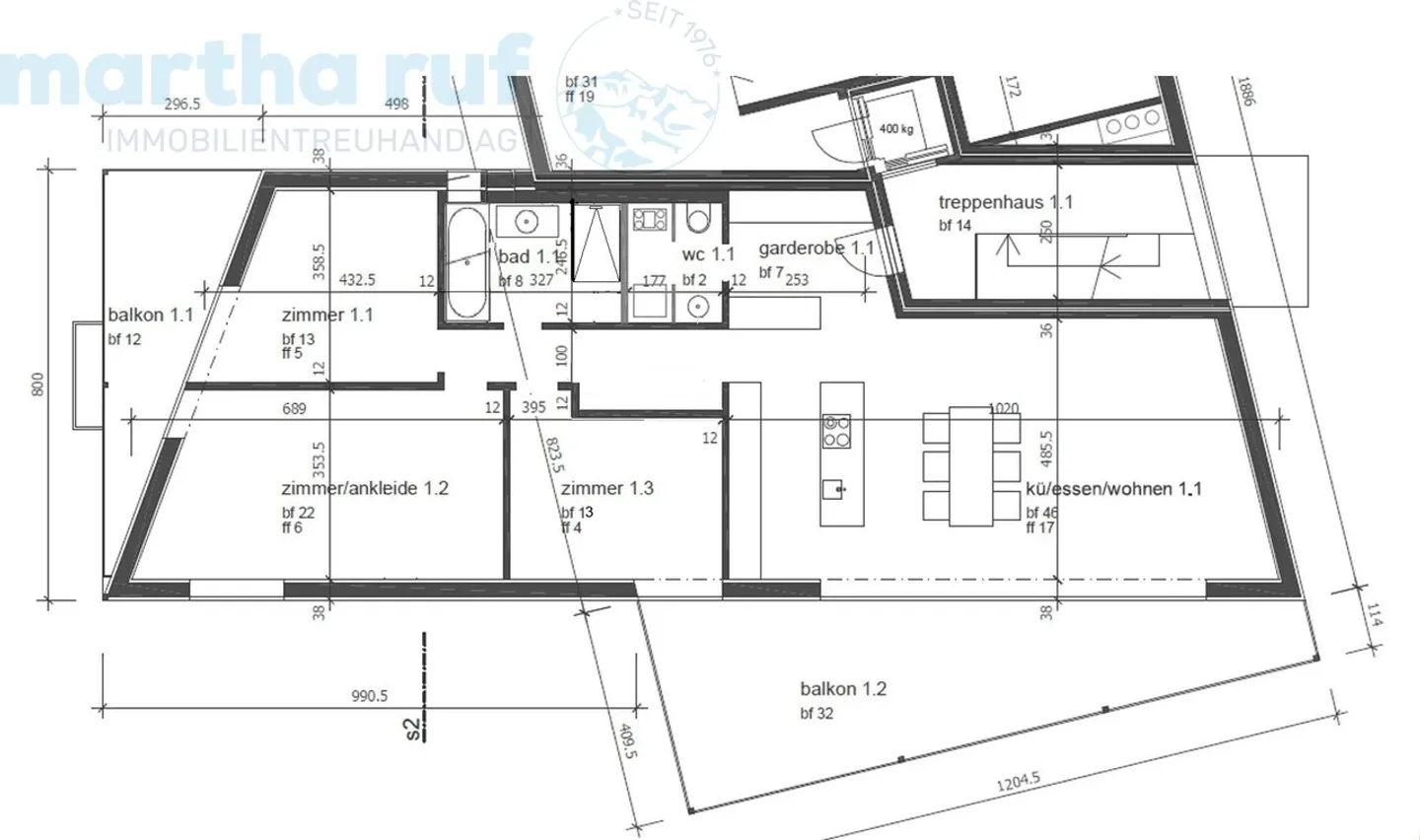
Appartamento luminoso e senza barriere con vista sulle alpi e finiture di alta qualità
Questo appartamento di 4,5 stanze, situato al 1° piano, colpisce per la sua costruzione di alta qualità secondo principi di bioedilizia e offre un concetto abitativo ben pensato. La proprietà è stata realizzata con particolare attenzione alla compatibilità ambientale e alla qualità della vita. La riduzione dell'elettrosmog garantisce un clima interno piacevole, mentre un sistema di riscaldamento ecologico e l'utilizzo delle acque piovane per il WC, la lavatrice nel seminterrato e l'irrigazione d...
Dettagli immobile
- Disponibile dal
- Su accordo
- Stanze
- 4.5
- Anno di costruzione
- 2013
- Anno di ristrutturazione
- 2023
- Superficie abitabile
- 115 m²
- Piano
- 1°



