Appartamento in affitto - 1374 Corcelles-sur-Chavornay
4.5 rooms • 81 m² • 2098 m² Plot • 2° piano
CHF 715’000.-
CHF 8’827 m²
Perché amerai questa proprietà
Ampio balcone per relax
Soggiorno luminoso con terrazza
Cucina moderna per eventi
Organizza una visita
Prenota una visita con Service oggi!
Service immobilier
Bernard Nicod SA | Yverdon Ventes
Questa descrizione è stata tradotta automaticamente da Tedesco.
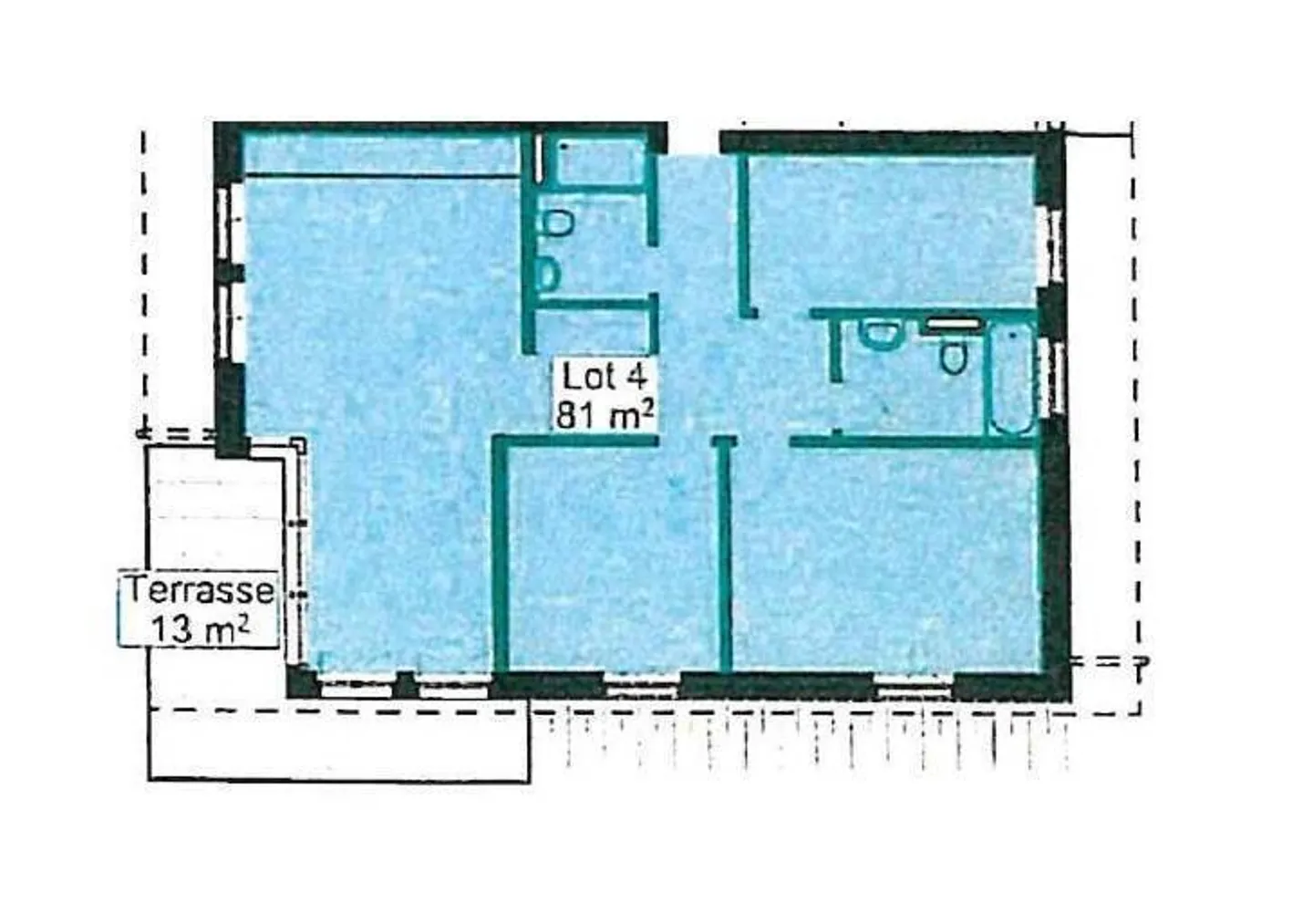
Appartamento 4.5 locali a corcelles-sur-chavornay
Goditi una vita tranquilla in campagna rimanendo vicino alle principali vie di trasporto e ai servizi! Situato nel pittoresco villaggio di Corcelles-Chavornay, questo appartamento di 4.5 locali incanta con il suo ampio balcone, la sua luminosità e il suo ambiente verde.
Caratteristiche:
* Superficie abitabile di 81 m2 con arredamento funzionale
* 3 camere luminose
* Soggiorno con accesso diretto alla terrazza
* Cucina aperta, completamente attrezzata, ideale per ricevimenti
* 1 bagno + 1 doccia
* Grand...
Dettagli immobile
- Disponibile dal
- 01.06.2026
- Stanze
- 4.5
- Anno di costruzione
- 2025
- Superficie abitabile
- 81 m²
- Superficie utilizzabile
- 81 m²
- Superficie terreno
- 2098 m²
- Piano
- 2°
- Piani dell'edificio
- 2
Caratteristiche
Balcone
Nuova costruzione
Agenzia
Bernard Nicod SA | Yverdon Ventes
Indirizzo:Rue de la Maison Rouge 31, 1400, Yverdon-les Bain
Ref: 1735489
Località
1374 Corcelles-sur-Chavornay