1 / 6

Attico in affitto - 1374 Corcelles-sur-Chavornay

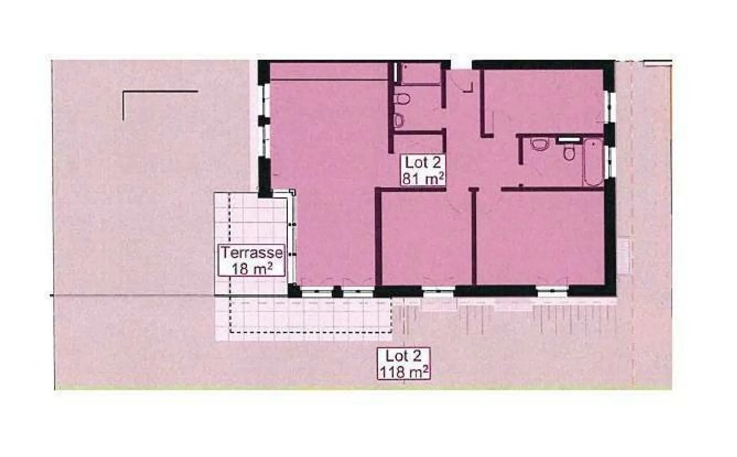
4.5 rooms • 81 m² • 2098 m² Plot • Piano terra
CHF 790’000.-
CHF 9’753 m²

Perché amerai questa proprietà

Giardino privato per relax

Soggiorno luminoso con terrazza

Cucina aperta per ricevimenti

Organizza una visita

Prenota una visita con Service oggi!

Service immobilier
Bernard Nicod SA | Yverdon Ventes
Questa descrizione è stata tradotta automaticamente da Tedesco.

Appartamento 4.5 stanze a corcelles-sur-chavornay

Goditi una vita tranquilla in campagna, rimanendo comunque vicino ai grandi assi e al comfort! Situato nel pittoresco villaggio di Corcelles-Chavornay, questo appartamento di 4.5 stanze incanta con il suo spazio esterno privato, la sua luminosità e l'ambiente verde.

Caratteristiche:

* Superficie abitabile di 81 m2 con layout funzionale

* 3 camere da letto luminose

* Soggiorno con accesso diretto alla terrazza

* Cucina aperta, completamente attrezzata, ideale per ricevere

* 1 bagno + 1 doccia

* Bella te...

Dettagli immobile

Disponibile dal
01.06.2026
Stanze
4.5
Anno di costruzione
2025
Superficie abitabile
81
Superficie utilizzabile
81
Superficie terreno
2098
Piano
Terra
Piani dell'edificio
2

Caratteristiche

Balcone
Nuova costruzione

Agenzia

Bernard Nicod SA | Yverdon Ventes
Indirizzo:Rue de la Maison Rouge 31, 1400, Yverdon-les Bain
Ref: 1735488

Località

1374 Corcelles-sur-Chavornay

Fonti