Appartamento in vendita - Unterdorfstrasse 13, 5612 Villmergen
Perché amerai questa proprietà
Piani flessibili
Posizione centrale
Interni personalizzabili
Organizza una visita
Prenota una visita con Erkan oggi!
Inizio costruzione completato! Appartamenti 3½ locali 1°-3° piano
Nuova costruzione di un edificio residenziale e commerciale
Al piano terra vengono creati tre spazi commerciali flessibili
Ai 1°-4° piani ci sono 14 appartamenti in condominio
In una posizione residenziale centrale e attraente
Centro raggiungibile in pochi minuti a piedi
Vicino a negozi e scuole
Cioè, uno sviluppo per tutte le fasce d'età
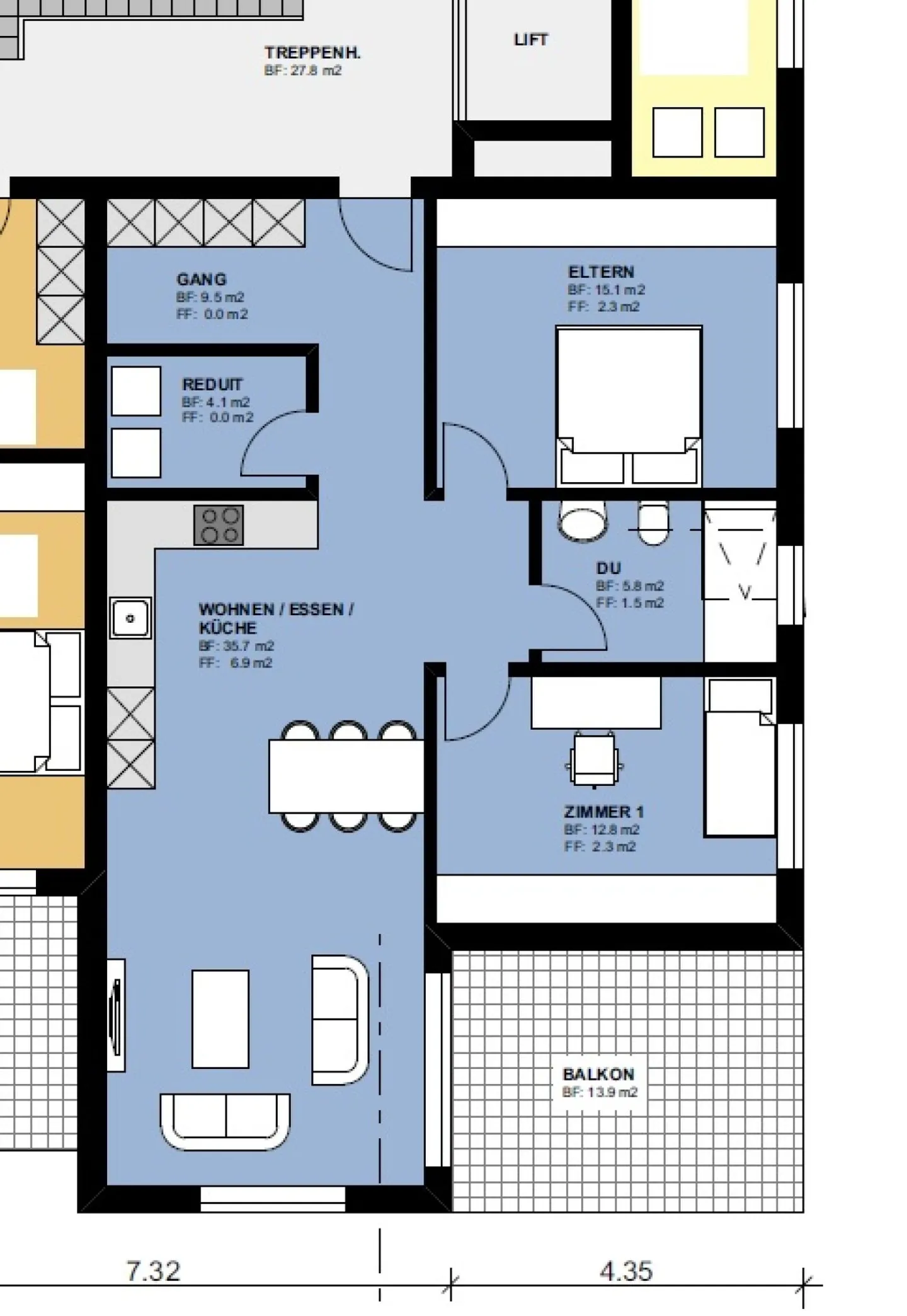
Planimetrie molto generose e flessibili
Distribuzione degli spazi pratica e ben pensata
Modifiche alla pianta possibili su richiesta
Design degli interni scelto dagli ac...
Dettagli immobile
- Disponibile dal
- 01.07.2027
- Stanze
- 3.5
- Anno di costruzione
- 2026
- Superficie abitabile
- 89 m²
- Superficie terreno
- 1122 m²
- Piano
- 2°
- Piani dell'edificio
- 5



