Duplex in vendita - 1260 Nyon
Perché amerai questa proprietà
Ampia terrazza a L
Materiali di alta qualità
Spazio seminterrato versatile
Organizza una visita
Prenota una visita oggi!
Duplex di alta gamma con terrazza nel cuore di nyon
By L3 Properties
+++ Posizione centrale
+++ Edificio di alta qualità
+++ Appartamento annesso
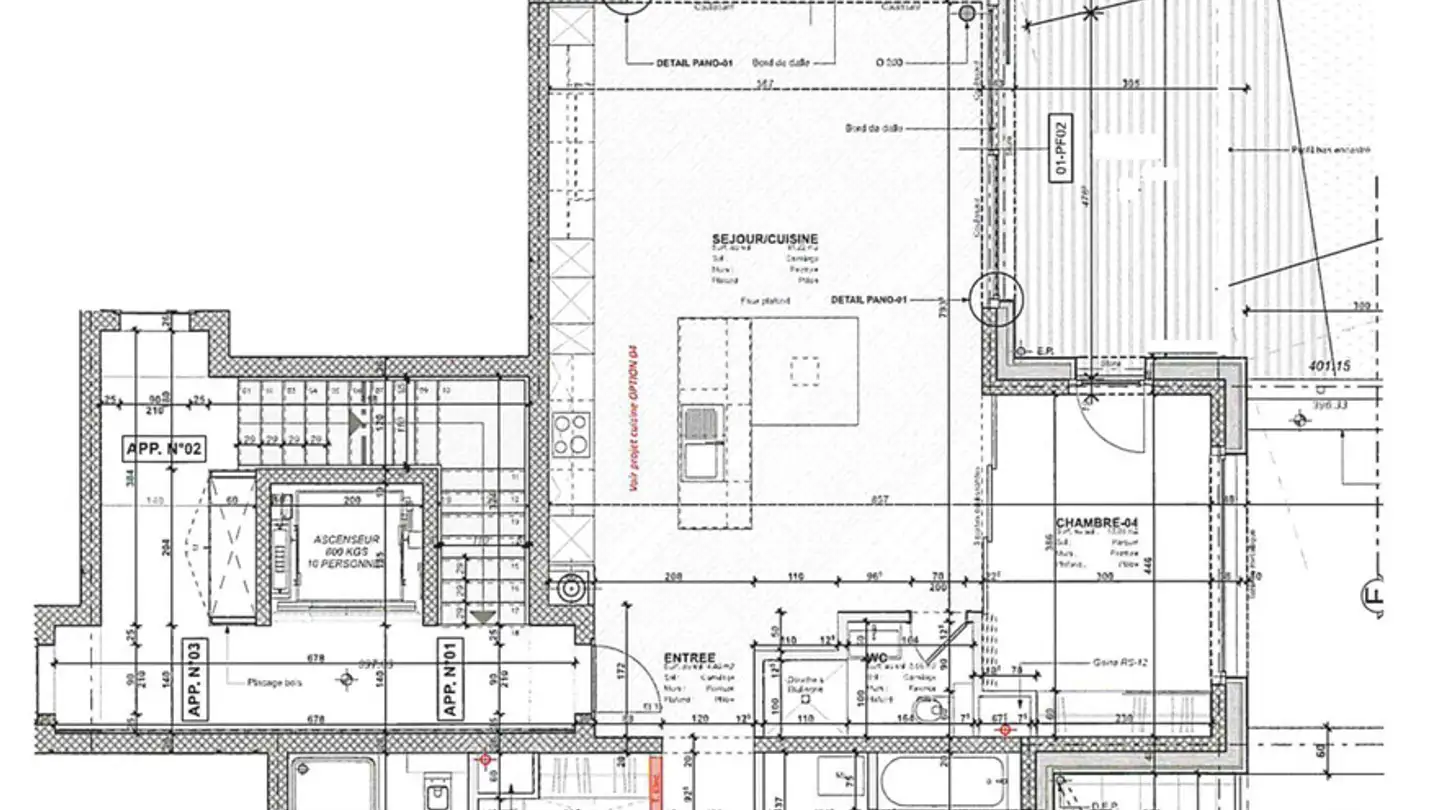
Situato nel centro di Nyon in un piccolo condominio di lusso, questo duplex attico si trova in prossimità immediata di tutti i negozi e dei servizi.
La grande terrazza a forma di L di circa 30 m2 è esposta a sud e ovest.
Questo appartamento è spazioso, luminoso e offre bei volumi. Molto ben mantenuto, i materiali sono di ottima qualità.
Al 1° piano, con ascensore, il piano terra ospita le aree di ricevimento...
Dettagli immobile
- Disponibile dal
- Su accordo
- Stanze
- 5.5
- Anno di costruzione
- 2013
- Superficie abitabile
- 245 m²
- Superficie utilizzabile
- 245 m²
- Piano
- 1°




